彩虹城A区 毛坯两室 看房方便 配套齐全 交通便利
-
38万
总价
-
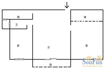
2室1厅
户型
-
91.31㎡
建筑面积
-
单价
4162元/平米
- 挂牌价格解析
-
楼层
低楼层/15层
- 咨询楼层
-
套内
暂无数据
- 咨询套内使用面积
-
楼型
板楼
-
朝向
南北
-
装修
毛坯
-
供暖
集中供暖
-
发布
2023-12-29
-
深度测评
小区彩虹城(永登-永登)
-
更多
楼户比、楼层高度、交易历史、抵押信息
周边配套
地址:兰州新区纬一路彩虹城东门
交通综合评分
查看全部5.0
“一般”
超过兰州94.9%的小区
-
地铁公交
5.0
-
驾车出行
10.0
本月均价 3936元/m²
环比上月 下跌 0.64%
同比去年 下跌 6.07%
猜你喜欢
同小区其它房源
-
5342元/㎡
本月挂牌均价
-
0.69%
环比上月
免责声明:房源信息由网站用户提供,其真实性、合法性由信息提供者负责,最终以政府部门登记备案为准。本网站不声明或保证内容之正确性和可靠性,购买该房屋时,请谨慎核查。入学情况仅凭历史经验总结,在此不承诺升学事宜。请您在签订合同之前,切勿支付任何形式的费用,以免上当受骗。



