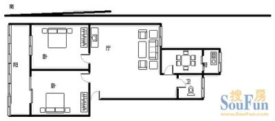
洛冷西院2室2厅南北
-
17.5万
总价
-
2室2厅
户型
-
72.32㎡
建筑面积
-
单价
2420元/平米
- 挂牌价格解析
-
楼层
高楼层/7层
- 咨询楼层
-
套内
暂无数据
- 咨询套内使用面积
-
楼型
板塔结合
-
朝向
南北
-
装修
简装
-
供暖
自供暖
-
发布
2025-06-21
-
深度测评
小区洛冷西院(西工-纱厂路)
-
更多
楼户比、楼层高度、交易历史、抵押信息
周边配套
地址:纱厂西路与五岳路交叉口向北50米
交通综合评分
查看全部5.2
“一般”
超过洛阳51.9%的小区
-
地铁公交
10.0
-
城际交通
4.0
本月均价 2412元/m²
环比上月 下跌 3.29%
同比去年 下跌 44.96%
猜你喜欢
同小区其它房源
-
5237元/㎡
本月挂牌均价
-
0.01%
环比上月
免责声明:房源信息由网站用户提供,其真实性、合法性由信息提供者负责,最终以政府部门登记备案为准。本网站不声明或保证内容之正确性和可靠性,购买该房屋时,请谨慎核查。入学情况仅凭历史经验总结,在此不承诺升学事宜。请您在签订合同之前,切勿支付任何形式的费用,以免上当受骗。



