(中安花园3-2-1-2 141.00m2
-
122万
总价
-
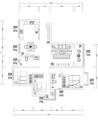
3室2厅2卫
户型
-
141㎡
建筑面积
-
单价
8653元/平米
- 挂牌价格解析
-
楼层
低楼层/29层
- 咨询楼层
-
套内
暂无数据
- 咨询套内使用面积
-
楼型
板塔结合
-
朝向
南
-
装修
毛坯
-
供暖
集中供暖
-
发布
2023-12-16
-
地铁
距2号线纱厂路站约317米
-
深度测评
小区中安花园(西工-新都汇)
-
更多
楼户比、楼层高度、交易历史、抵押信息
周边配套
地址:健康路20号(原干休所)
交通综合评分
查看全部5.2
“一般”
超过洛阳6.0%的小区
-
地铁公交
10.0
-
城际交通
4.0
本月均价 8176元/m²
环比上月 下跌 0.38%
同比去年 下跌 11.14%
猜你喜欢
同小区其它房源
户型齐全,主打户型方正,明厨,明卫,客厅朝南,主卧朝南三居
中安花园户型主要有130平-142平的户型方正,明厨,明卫,客厅朝南,主卧朝南的三居 、64平-97平的户型方正,明卫,双卧朝南的二居 。
*获取完整户型报告,同时会有免费语音讲解服务
-
5546元/㎡
本月挂牌均价
-
3.54%
环比上月
免责声明:房源信息由网站用户提供,其真实性、合法性由信息提供者负责,最终以政府部门登记备案为准。本网站不声明或保证内容之正确性和可靠性,购买该房屋时,请谨慎核查。入学情况仅凭历史经验总结,在此不承诺升学事宜。请您在签订合同之前,切勿支付任何形式的费用,以免上当受骗。



