洛浦公园边 地铁口 园林小区河畔明珠 精装双气
-
96万
总价
-
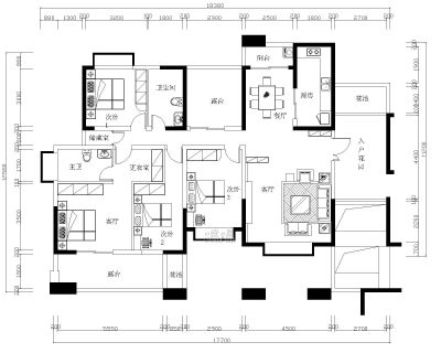
3室2厅2卫
户型
-
133㎡
建筑面积
-
单价
7219元/平米
- 挂牌价格解析
-
楼层
高楼层/6层
- 咨询楼层
-
套内
暂无数据
- 咨询套内使用面积
-
楼型
板楼
-
朝向
南
-
装修
精装
-
供暖
集中供暖
-
发布
2025-04-03
-
深度测评
小区河畔明珠(西工-下池)
-
更多
楼户比、楼层高度、交易历史、抵押信息
周边配套
地址:九都路与解放路交叉口牡丹桥东侧洛浦公园北
交通综合评分
查看全部5.2
“一般”
超过洛阳77.4%的小区
-
地铁公交
10.0
-
城际交通
4.0
本月均价 7588元/m²
环比上月 下跌 2.58%
同比去年 下跌 9.44%
猜你喜欢
同小区其它房源
户型齐全,主打明厨,明卫,主卧朝南三居
河畔明珠户型主要有117平-136平的明厨,明卫,主卧朝南的三居 、92平-100平的户型方正,明卫,明厨,主卧朝南的二居 、147平-151平的明卫,明厨,主卧朝南的四居 。
*获取完整户型报告,同时会有免费语音讲解服务
免责声明:房源信息由网站用户提供,其真实性、合法性由信息提供者负责,最终以政府部门登记备案为准。本网站不声明或保证内容之正确性和可靠性,购买该房屋时,请谨慎核查。入学情况仅凭历史经验总结,在此不承诺升学事宜。请您在签订合同之前,切勿支付任何形式的费用,以免上当受骗。



