开元壹号芸台|上下两层复式毛坯房|证件齐全|满二随时看
-
190万
总价
-
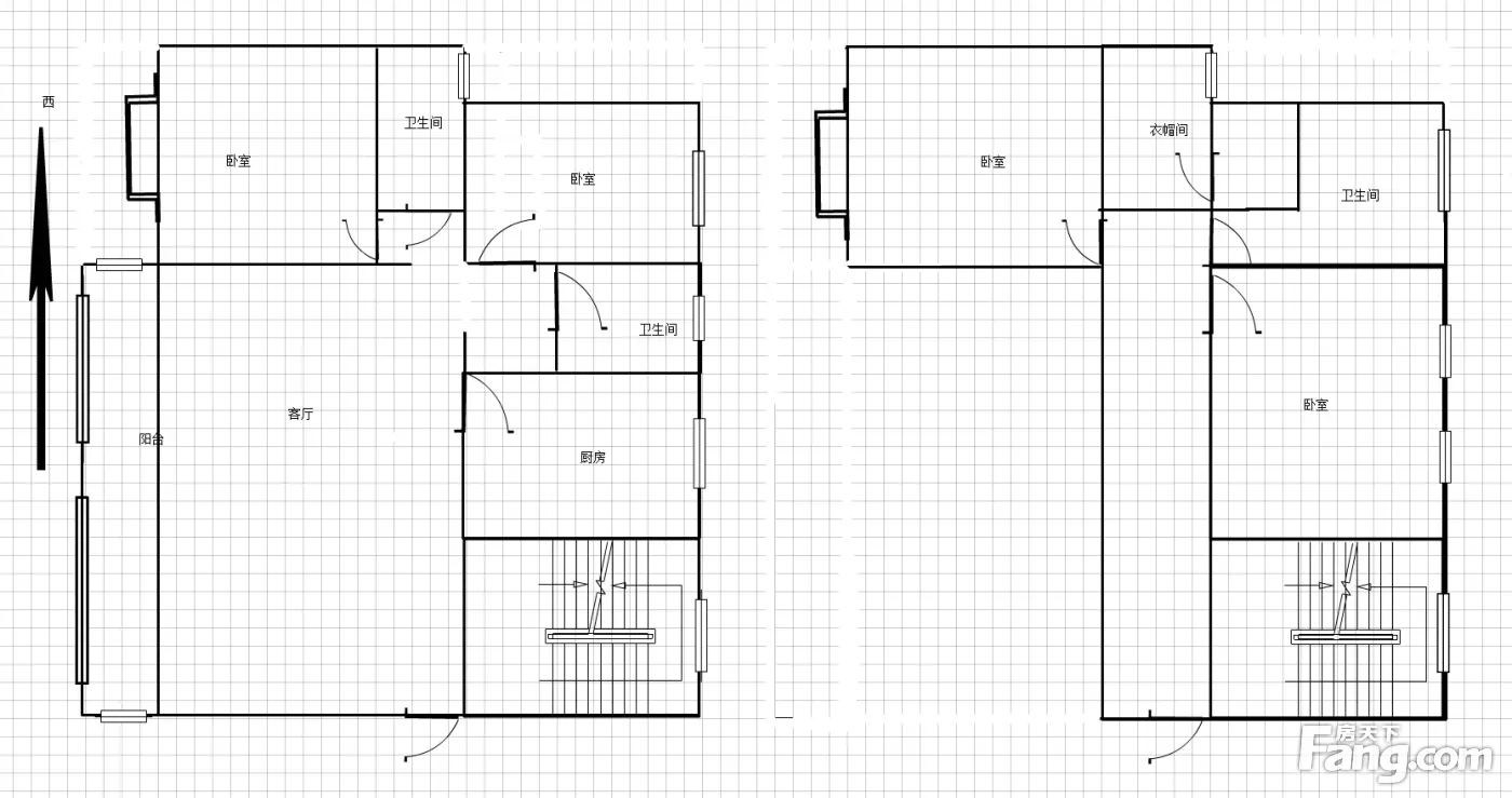
4室2厅2卫
户型
-
202㎡
建筑面积
-
单价
9406元/平米
- 挂牌价格解析
-
楼层
高层/33层
- 咨询楼层
-
套内
暂无数据
- 咨询套内使用面积
-
楼型
板楼
-
朝向
南北
-
装修
毛坯
-
年代
2022
-
发布
2026-01-08
-
地铁
暂无数据
-
深度测评
小区开元壹号(洛龙-关林)
-
更多
楼户比、楼层高度、交易历史、抵押信息
房源描述(1)
-
核心卖点问经纪人
相信为您推荐的这套房子您一定会满意,赶快行动吧,先到先得! 房屋年代∶2022,面积∶202.0平方米,朝向∶南北 1. 小区配备高端物业管理,让你享受宾至如归的服务; 2. 小区人文素质高,是您的居家的绝佳选择; 3. 小区居住安静舒适,让您拥有高品质的生活环境; 4. 小区绿化率高,绿树成荫鸟语花香让您随时呼吸到新鲜空气。
-
业主心态问经纪人
业主在其他地方买房,置换出售此房屋,看中房子价位可小刀
-
小区配套问经纪人
1、小区位于洛龙区核心.地段 2、邻兴洛湖公园,泉舜商圈,高铁站,客运南站,出行方便 3、小区内绿化率.高,管理到位,人车分流
-
服务介绍问经纪人
我是懿皇地产的陈雅丽,手机号:丨O(同步) 从事房产行业多年时间,自信以我的经验为您找到理想的家! 好房不等人,但我会等你 有买房卖房等业务需求,请直接电话沟通
-
税费分析房贷计算
1、个人所得税:1% 2、契税:140㎡以内,首套和二套房1%,140㎡以上,首套1.5%,二套2%,三套房不论面积大小,统一3% 3、不满两年的房子增.值税5.33% 目前银行利率有lpr和基准利率,可自行选择
-
户型解读问经纪人
房屋拥有相对宽松的尺寸,布局通透,动静分离,设计豪华
周边配套
本月均价 8518元/m²
环比上月 上涨 0.49%
同比去年 下跌 4.98%
猜你喜欢
同小区其它房源
户型齐全,主打南北通透,主卧带卫,户型方正,客厅朝南,主卧朝南,带衣帽间,全明格局,双阳台三居
开元壹号户型主要有89平-164平的南北通透,主卧带卫,户型方正,客厅朝南,主卧朝南,带衣帽间,全明格局,双阳台的三居 、86平-119平的户型方正,客厅朝南,主卧朝南的二居 、137平-197平的南北通透,主卧带卫,客厅朝南,主卧朝南,带衣帽间,全明格局,双阳台的四居 。
*获取完整户型报告,同时会有免费语音讲解服务
-
6961元/㎡
本月挂牌均价
-
1.65%
环比上月
- 免费咨询
- 专业服务
- 区域解读
- 户型分析


