中电银河湾·小高层4室2厅3卫 南北通透 精装修 满二年
-
305万
总价
-
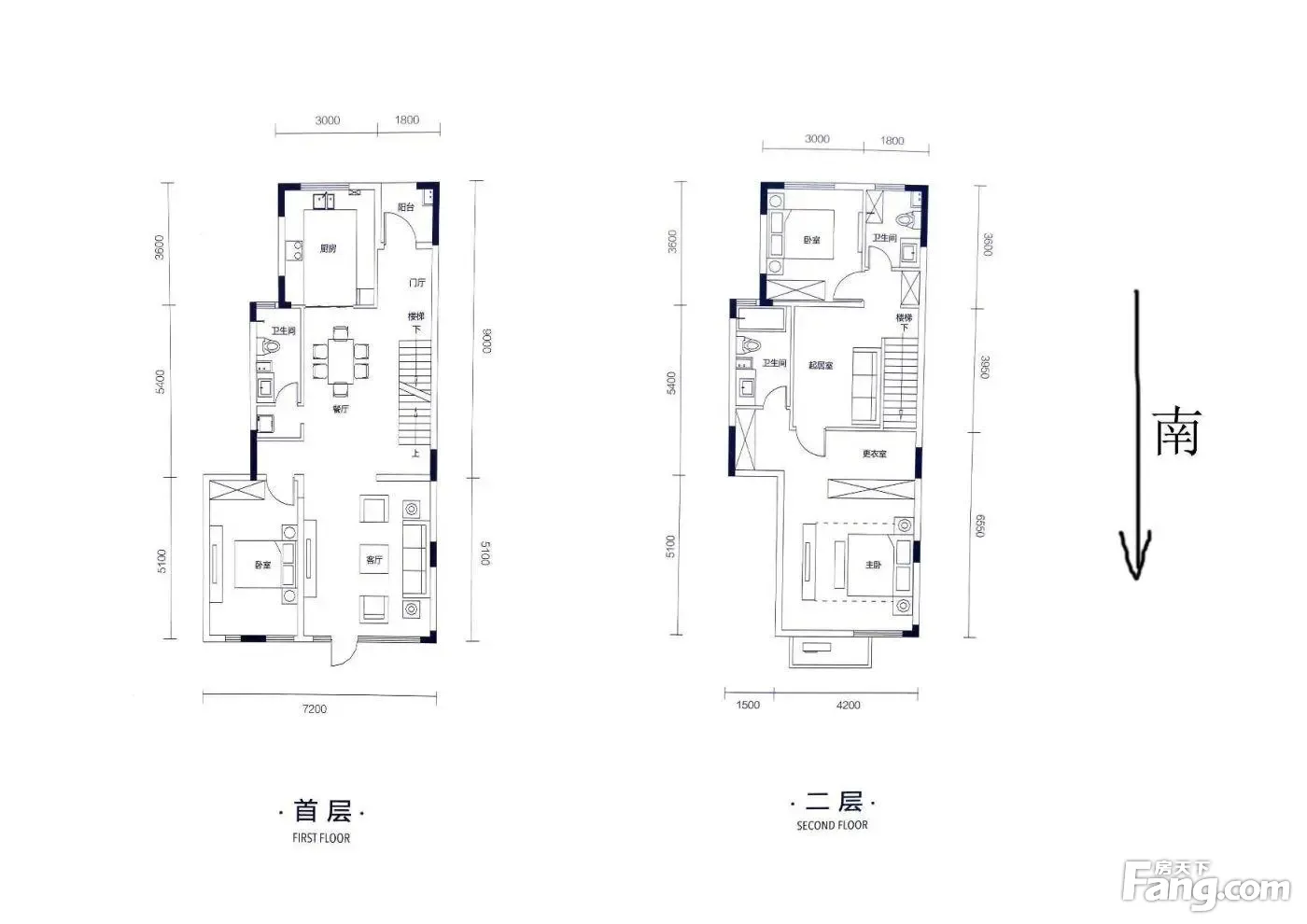
4室2厅3卫
户型
-
181㎡
建筑面积
-
单价
16851元/平米
- 挂牌价格解析
-
楼层
底层/6层
- 咨询楼层
-
套内
暂无数据
- 咨询套内使用面积
-
楼型
板楼
-
朝向
南北
-
装修
简装修
-
年代
2015
-
发布
2025-03-14
-
深度测评
小区中电银河湾·小高层(伊滨-八中)
-
更多
楼户比、楼层高度、交易历史、抵押信息
房源描述(1)
周边配套
地址:开元大道东136号中电银行湾
本月均价 13715元/m²
环比上月 下跌 1%
同比去年 下跌 0.19%
-
8527元/㎡
本月挂牌均价
-
3.45%
环比上月
- 免费咨询
- 专业服务
- 区域解读
- 户型分析
免责声明:房源信息由网站用户提供,其真实性、合法性由信息提供者负责,最终以政府部门登记备案为准。本网站不声明或保证内容之正确性和可靠性,购买该房屋时,请谨慎核查。入学情况仅凭历史经验总结,在此不承诺升学事宜。请您在签订合同之前,切勿支付任何形式的费用,以免上当受骗。


