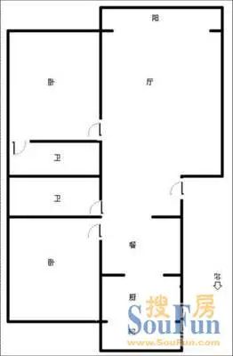
邵村北苑3室2厅南北
-
110万
总价
-
3室2厅
户型
-
117.23㎡
建筑面积
-
单价
9384元/平米
- 挂牌价格解析
-
楼层
高楼层/6层
- 咨询楼层
-
套内
暂无数据
- 咨询套内使用面积
-
楼型
板楼
-
朝向
南北
-
装修
其他
-
供暖
暂无数据
-
发布
2025-08-24
-
咨询总首付
首付约44.1万
首付税费及佣金情况 -
深度测评
小区邵村北苑(陆家-陆家镇中心)
-
更多
楼户比、楼层高度、交易历史、抵押信息
周边配套
地址:陆家镇友谊路
本月均价 7091元/m²
环比上月 下跌 12.99%
同比去年 下跌 9.52%
猜你喜欢
同小区其它房源
户型齐全,主打户型方正,明厨三居
邵村北苑户型主要有91平-91平的户型方正,明厨的三居 、186平-195平的户型方正,明厨,客厅朝南的其他居 。
*获取完整户型报告,同时会有免费语音讲解服务
免责声明:房源信息由网站用户提供,其真实性、合法性由信息提供者负责,最终以政府部门登记备案为准。本网站不声明或保证内容之正确性和可靠性,购买该房屋时,请谨慎核查。入学情况仅凭历史经验总结,在此不承诺升学事宜。请您在签订合同之前,切勿支付任何形式的费用,以免上当受骗。



