昆玉九里 3居室 豪装 150平 看房方便 有钥匙
-
470万
总价
-
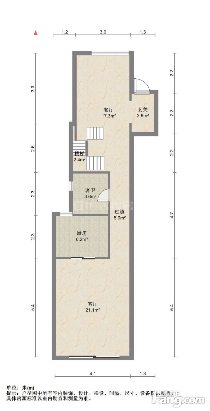
2室2厅2卫
户型
-
150.1㎡
建筑面积
-
单价
31312元/平米
- 挂牌价格解析
-
楼层
6层
- 咨询楼层
-
套内
149.1㎡
- 咨询套内使用面积
-
楼型
独栋
-
朝向
南
-
装修
豪华装修
-
年代
2013
-
发布
2025-10-22
-
咨询总首付
首付约190.4万
首付税费及佣金情况 -
深度测评
小区华润置地·昆玉九里(昆山-市中心)
-
更多
楼户比、楼层高度、交易历史、抵押信息
房源描述(1)
-
核心卖点问经纪人
核心卖点房子,税/费少,户型正气,采光,地段成熟,周边设备齐全,看房基本方便,欢迎来电。。 1位置:不邻街,不把边,位置。看了包喜欢。 2楼层:采光,阳/光全天照射到您温馨的家。 3装修:全新精装,户型漂亮, 4交通:多路公交车市区,高铁站。绿化率/高达45%,绿树成萌鸟语花香,让您随时呼吸到新鲜空气。。。
周边配套
地址:昆山中心城区虹桥路东侧、万步路北侧
-
15328元/㎡
本月挂牌均价
-
0.11%
环比上月
- 免费咨询
- 专业服务
- 区域解读
- 户型分析
免责声明:房源信息由网站用户提供,其真实性、合法性由信息提供者负责,最终以政府部门登记备案为准。本网站不声明或保证内容之正确性和可靠性,购买该房屋时,请谨慎核查。入学情况仅凭历史经验总结,在此不承诺升学事宜。请您在签订合同之前,切勿支付任何形式的费用,以免上当受骗。


