福华花园4室2卫 145平 翠湖 王付井 地铁口 近医院
-
198万
总价
-
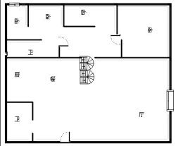
4室2厅
户型
-
144.18㎡
建筑面积
买房加房产交流群,省钱不踩雷
3000+人正在热聊
加入群聊
-
单价
13733元/平米
- 挂牌价格解析
-
楼层
中楼层/8层
- 咨询楼层
-
套内
暂无数据
- 咨询套内使用面积
-
楼型
板楼
-
朝向
东西
-
装修
其他
-
供暖
暂无数据
-
发布
2024-10-28
-
地铁
距3号线五一路站约353米
-
深度测评
小区福华花园(五华-南屏街片区)
-
更多
楼户比、楼层高度、交易历史、抵押信息
周边配套
地址:五一路中下段(西部情大酒店斜对面)
交通综合评分
查看全部7.3
“较好”
超过昆明80.7%的小区
-
地铁公交
10.0
-
驾车出行
7.0
-
城际交通
4.0
本月均价 15883元/m²
环比上月 上涨 2.88%
同比去年 下跌 5.05%
猜你喜欢
同小区其它房源
户型齐全,主打明卫,明厨,客厅朝南,全明格局三居
福华花园户型主要有82平-107平的明卫,明厨,客厅朝南,全明格局的三居 、74平-75平的明卫,客厅朝南的二居 、177平-177平的明卫,明厨,客厅朝南,全明格局的四居 。
*获取完整户型报告,同时会有免费语音讲解服务
-
13753元/㎡
本月挂牌均价
-
1.28%
环比上月
买房加房产交流群,省钱不踩雷
3000+人正在热聊
加入群聊
免责声明:房源信息由网站用户提供,其真实性、合法性由信息提供者负责,最终以政府部门登记备案为准。本网站不声明或保证内容之正确性和可靠性,购买该房屋时,请谨慎核查。入学情况仅凭历史经验总结,在此不承诺升学事宜。请您在签订合同之前,切勿支付任何形式的费用,以免上当受骗。



