皇都花苑满五唯一,带车位,南北通复式,诚心卖价可商
-
165万
总价
-
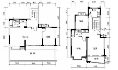
4室2厅
户型
-
164.53㎡
建筑面积
-
单价
10029元/平米
- 挂牌价格解析
-
楼层
低楼层/11层
- 咨询楼层
-
套内
暂无数据
- 咨询套内使用面积
-
楼型
板楼
-
朝向
南
-
装修
简装
-
供暖
暂无数据
-
发布
2023-03-06
-
地铁
暂无数据
-
深度测评
小区皇都花苑(南湖-欧尚)
-
更多
楼户比、楼层高度、交易历史、抵押信息
周边配套
地址:南溪西路2219号
交通综合评分
查看全部5.2
“一般”
超过嘉兴72.0%的小区
-
地铁公交
10.0
-
城际交通
4.0
本月均价 16148元/m²
环比上月 下跌 1.43%
同比去年 下跌 16.37%
猜你喜欢
同小区其它房源
-
11858元/㎡
本月挂牌均价
-
1.84%
环比上月
免责声明:房源信息由网站用户提供,其真实性、合法性由信息提供者负责,最终以政府部门登记备案为准。本网站不声明或保证内容之正确性和可靠性,购买该房屋时,请谨慎核查。入学情况仅凭历史经验总结,在此不承诺升学事宜。请您在签订合同之前,切勿支付任何形式的费用,以免上当受骗。



