牧马庄园 3室1厅 123.20㎡ 南北通透 紧邻泰华至臻
-
50万元
总价
-
123.2㎡
建筑面积
买房加房产交流群,省钱不踩雷
3000+人正在热聊
加入群聊
-
单价
4058元/平米
- 挂牌价格解析
-
套内
暂无数据
- 咨询套内使用面积
-
朝向
南北
-
发布
2025-09-30
-
地铁
暂无数据
-
深度测评
小区牧马庄园(桃城-郊区)
-
更多
楼户比、楼层高度、交易历史、抵押信息
业主自评
-
房主超赞_欢迎咨询
加入房天下1904天
接电时间:09:00-22:00
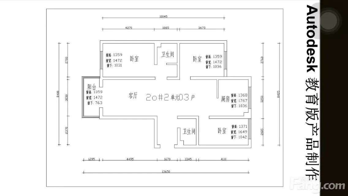
三室两厅两卫,13层(总高20层)。 毛坯未住,南北通透,地暖,天然气入户,有公交车直达。 紧邻衡实、泰华、至臻等学校和牧马庄园赛马场。小区入住率高。
三室两厅两卫,13层(总高20层)。 毛坯未住,南北通透,地暖,天然气入户,有公交车直达。 紧邻衡实、泰华、至臻等学校和牧马庄园赛马场。小区入住率高。
联系业主
免责声明:房源信息由网站用户提供,其真实性、合法性由信息提供者负责,最终以政府部门登记备案为准。本网站不声明或保证内容之正确性和可靠性,购买该房屋时,请谨慎核查。入学情况仅凭历史经验总结,在此不承诺升学事宜。请您在签订合同之前,切勿支付任何形式的费用,以免上当受骗。

