观山湖地铁口看山体公园单价8700起阳台视野无遮挡
-
102万
总价
-
3室2厅2卫
户型
-
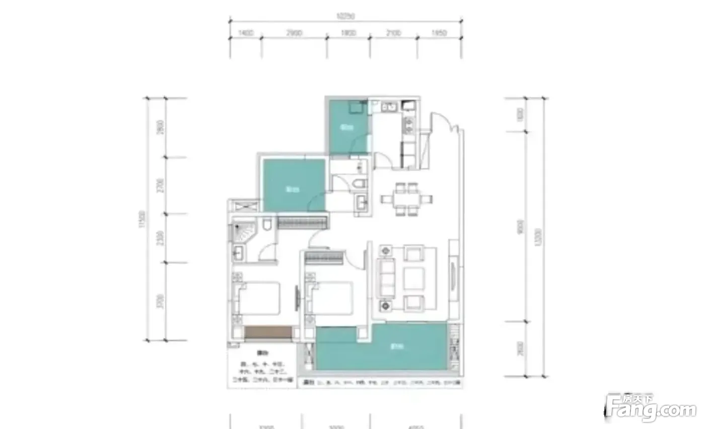
112㎡
建筑面积
买房加房产交流群,省钱不踩雷
3000+人正在热聊
-
单价
9107元/平米
- 挂牌价格解析
-
楼层
中层/33层
- 咨询楼层
-
套内
111㎡
- 咨询套内使用面积
-
楼型
板楼
-
朝向
南
-
装修
毛坯
-
年代
2021
-
发布
2026-04-09
-
地铁
距1号线阅山湖公园站约816米
-
深度测评
小区中铁阅山湖(观山湖-阅山湖)
-
更多
楼户比、楼层高度、交易历史、抵押信息
房源描述(1)
-
核心卖点问经纪人
1、交通配套:观山西路、黔灵山路,和纵向云潭南路,能通往观山湖和贵阳的各个区域;公交出行方面,小区有超过20条公交路线,而且地铁2号线观山西路站和兴筑西路站离我们不到1公里。 2、商圈配套:三大购物。万达广场,万象汇、喀斯特购物广场、国贸等。 3、公园配套:三大公园包括观山湖公园、阅山湖公园和市政规划的山体公园。 4、医院:贵阳第二人民医院(金阳医院)和省医分院只有10,为您健康保驾护航。 5、 : 已经开學, 即将开學
-
业主心态问经纪人
房东置换,诚心出售,可以再谈,欢迎看房,随时恭候。
-
小区配套问经纪人
小区地理位置佳,绿化环境优越整洁,居民素质高,物业管理完善,适宜
-
服务介绍问经纪人
本人做房产多年,一直本着专业的房产知识,为您服务,我会在短的时间内帮您买好满意的房子,不让您错失任何好房子,更不让您每天为买房的事烦心,欢迎随时拨打我电话。
-
税费分析房贷计算
关于本房的税费信息情况,请电话联系我,我将详细的为您讲解!
-
户型解读问经纪人
房屋拥有相对宽松的尺寸,布局通透,动静分离,设计豪华
周边配套
交通综合评分
查看全部超过贵阳1.8%的小区
-
地铁公交
10.0
-
驾车出行
9.0
本月均价 10279元/m²
环比上月 下跌 5.27%
同比去年 下跌 6.02%
猜你喜欢
同小区其它房源
户型齐全,主打户型方正,三开间朝南,L型厨房四居
中铁阅山湖户型主要有121平-300平的户型方正,三开间朝南,L型厨房的四居 、112平-133平的采光充足,主卧带卫,干湿分离,大面宽阳台的三居 、261平-270平的挑高客厅,独立玄关,主卧带卫的五居 。
*获取完整户型报告,同时会有免费语音讲解服务
-
10381元/㎡
本月挂牌均价
-
2.28%
环比上月
买房加房产交流群,省钱不踩雷
3000+人正在热聊
- 免费咨询
- 专业服务
- 区域解读
- 户型分析


