观山湖视野ZUI好的楼盘阳台5公里无遮挡赠送大地铁口
-
102万
总价
-
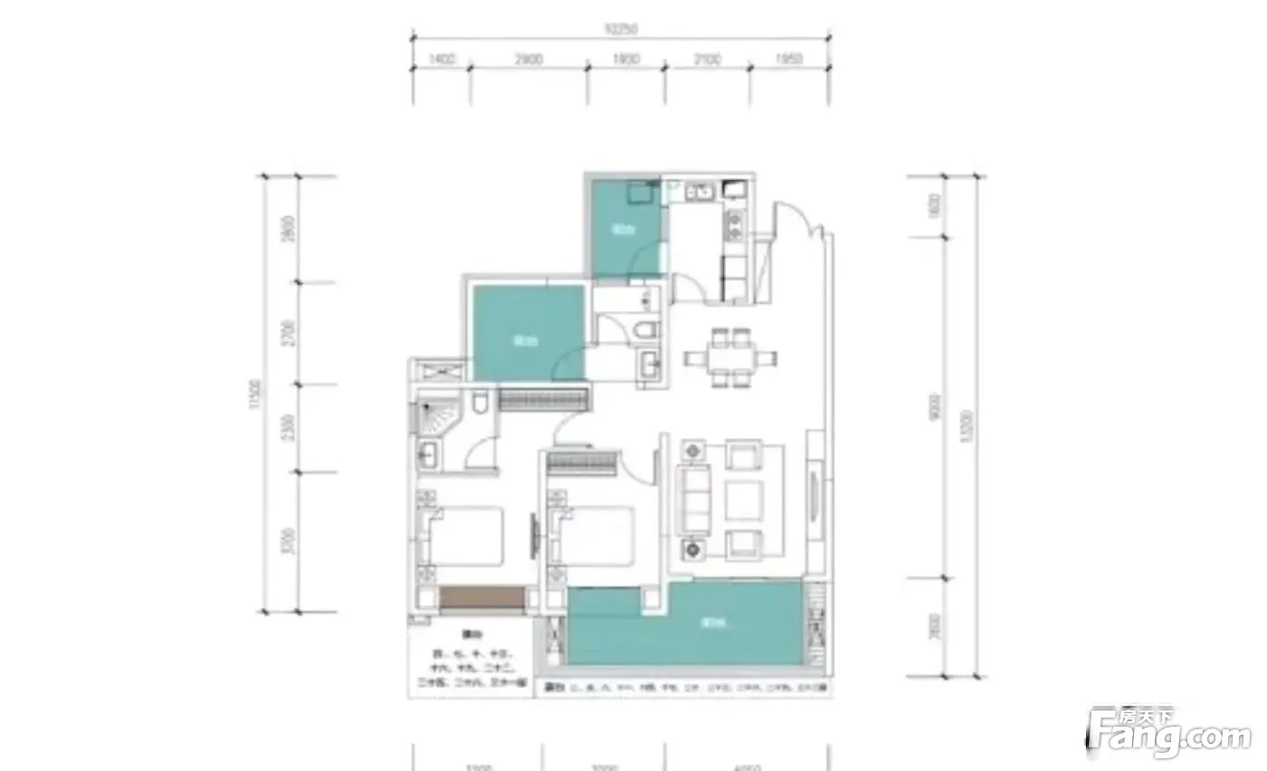
3室2厅2卫
户型
-
112㎡
建筑面积
买房加房产交流群,省钱不踩雷
3000+人正在热聊
加入群聊
-
单价
9107元/平米
- 挂牌价格解析
-
楼层
中层/32层
- 咨询楼层
-
套内
111㎡
- 咨询套内使用面积
-
楼型
板楼
-
朝向
南
-
装修
毛坯
-
年代
2021
-
发布
2026-04-09
-
地铁
距1号线阅山湖公园站约816米
-
深度测评
小区中铁阅山湖(观山湖-阅山湖)
-
更多
楼户比、楼层高度、交易历史、抵押信息
房源描述(1)
周边配套
地址:云潭北路旁(观山西路与云潭北路交汇处)
交通综合评分
查看全部6.7
“较好”
超过贵阳1.8%的小区
-
地铁公交
10.0
-
驾车出行
9.0
本月均价 10279元/m²
环比上月 下跌 5.27%
同比去年 下跌 6.02%
猜你喜欢
同小区其它房源
户型齐全,主打户型方正,三开间朝南,L型厨房四居
中铁阅山湖户型主要有121平-300平的户型方正,三开间朝南,L型厨房的四居 、112平-133平的采光充足,主卧带卫,干湿分离,大面宽阳台的三居 、261平-270平的挑高客厅,独立玄关,主卧带卫的五居 。
*获取完整户型报告,同时会有免费语音讲解服务
-
10381元/㎡
本月挂牌均价
-
2.28%
环比上月
买房加房产交流群,省钱不踩雷
3000+人正在热聊
加入群聊
- 免费咨询
- 专业服务
- 区域解读
- 户型分析
免责声明:房源信息由网站用户提供,其真实性、合法性由信息提供者负责,最终以政府部门登记备案为准。本网站不声明或保证内容之正确性和可靠性,购买该房屋时,请谨慎核查。入学情况仅凭历史经验总结,在此不承诺升学事宜。请您在签订合同之前,切勿支付任何形式的费用,以免上当受骗。


