地铁一号线 中山西路站 电梯房 大十字市府路 东方明珠 满五
-
118万
总价
-
3室2厅2卫
户型
-
156㎡
建筑面积
买房加房产交流群,省钱不踩雷
3000+人正在热聊
-
单价
7564元/平米
- 挂牌价格解析
-
楼层
高层/27层
- 咨询楼层
-
套内
155㎡
- 咨询套内使用面积
-
楼型
板楼
-
朝向
南
-
装修
精装修
-
年代
2010
-
发布
2025-10-25
-
地铁
距1号线中山西路站约169米
-
深度测评
小区东方明珠(云岩-大西门)
-
更多
楼户比、楼层高度、交易历史、抵押信息
房源描述(1)
-
核心卖点问经纪人
房源介绍: 1、卖点: 电梯房,读市府路小学、地铁一号线,中山西路站C出口。 2、产权面积: 156 平方。 3、房屋户型: 3房2厅2卫,户型方正,南北通透,厨卫全明。 4、落户详情:该房屋原业主户口已迁出、空户、随时办理迁入户口。 5、手续情况: 产权清晰、无尾款、无抵押、随时办理过户 6、交通配套:地铁一号线,地铁二号线 步行10、出小区大门有多路公交车出行, 出行方便。 7、生活配套:周边有大型生活超市、民生菜市场、健身房,游泳馆、美食城、 大型购物商场、等等现在已全部开业,能满足的平时基本生活需求。
-
业主心态问经纪人
业主很信任我,我能了解业主卖房新的动态。目前市场交易量平稳,政策已经基本稳定,是市场触底入手的好时候。请不要错过性价比高的好房。
-
小区配套问经纪人
位置:小区地理位置,绿化率高,居民素质高 配套:有健身器材,小型篮球场,可供小区居民使用 车位:停车位充足,建有地上停车场和地下车库 保安:小区内24保安巡逻
-
服务介绍问经纪人
本人从事房地产多年,公司有大量好房源,欢迎进入我的店铺查看,欢迎随时电话咨询,相信我的专业,为您置业安家保驾护航。
-
税费分析房贷计算
新房: 房税费首套房契税1至3个点。 二手房交易税费: 契税:140平以内:1% ;(交房后地税收取) 注:以上收费仅供参考
-
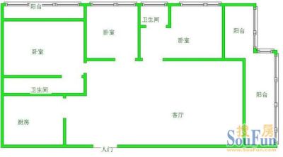
户型解读问经纪人
房源介绍: 1、卖点: 电梯房,读市府路小学、地铁一号线,中山西路站C出口。 2、产权面积: 156 平方。 3、房屋户型: 3房2厅2卫,户型方正,南北通透,厨卫全明。 4、落户详情:该房屋原业主户口已迁出、空户、随时办理迁入户口。 5、手续情况: 产权清晰、无尾款、无抵押、随时办理过户 6、交通配套:地铁一号线,地铁二号线 步行10、出小区大门有多路公交车出行, 出行方便。 7、生活配套:周边有大型生活超市、民生菜市场、健身房,游泳馆、美食城、 大型购物商场
周边配套
交通综合评分
查看全部超过贵阳87.2%的小区
-
地铁公交
10.0
本月均价 6929元/m²
环比上月 下跌 2.58%
同比去年 下跌 12.02%
猜你喜欢
同小区其它房源
-
6457元/㎡
本月挂牌均价
-
0.73%
环比上月
买房加房产交流群,省钱不踩雷
3000+人正在热聊
- 免费咨询
- 专业服务
- 区域解读
- 户型分析


