首府3万 花溪主城 送车位 毛坯交房 样板间展示
-
62万
总价
-
3室2厅2卫
户型
-
88㎡
建筑面积
买房加房产交流群,省钱不踩雷
3000+人正在热聊
-
单价
7045元/平米
- 挂牌价格解析
-
楼层
高层/32层
- 咨询楼层
-
套内
74.8㎡
- 咨询套内使用面积
-
楼型
板楼
-
朝向
南
-
装修
精装修
-
年代
2021
-
发布
2025-02-19
-
地铁
暂无数据
-
深度测评
小区美的国宾府(花溪-甲秀南路南)
-
更多
楼户比、楼层高度、交易历史、抵押信息
房源描述(1)
-
核心卖点问经纪人
【建面88㎡2居】75万-分布于A21栋,2梯6户,3.00米,总楼层33F建面113㎡3居】97万-分布于A21栋,2梯6户,3.00米,总楼层33F【建面125㎡3居】110万-分布于A26#,2梯5户,3.00米,总楼层32F【建面116㎡3居】84万-分布于A33栋A20#A26#,2梯5户,3.00米,总楼层32建面88㎡2居】75万-分布于A21栋,2梯6户,3.00米,总楼层33F【建面113㎡3居】97万-分布于A21栋,2梯6户,3.00米,总楼层33F【建面125㎡3居】110万-分布于A26#,2梯5户,3.00米
-
业主心态问经纪人
我是置业顾问小杨,专业从事新房、商铺、二手房买卖,从到访、接待、带看、签约到过户,您将享受一对一的专业服务。很多新房楼盘和我们是合作战略关系,通过我们渠道过去的客户另外有购房折扣优惠,只要您一个电话,看房免费开车接送,全程为您服务,根据您的需求,推荐合适您的性价比高的房子。郑重承诺:新房不收取客户任何费用,我们的工资由房开支付。
-
小区配套问经纪人
小区地理位置佳,绿化环境优越整洁,居民素质高,物业管理完善,适宜
-
服务介绍问经纪人
1所有房源无税费.无中间费用.无不明交易 2所有房源实地考察.实地拍摄.均可带看 3所有房源无产权纠纷.无抵押.无中间差价 4超市级房源.贵宾级服务,你一个电话就好 5开车来回接送哦
-
税费分析房贷计算
1、一手新房、房开直售、无任何费用。 2、维修基金:104/㎡ 3.:购房(以家庭为单位)且建筑面积90㎡以下:1%,购房建筑面积90(含)——144㎡:1.5%,二套房:2%,三套房及以上:3%(交房后办1理房产证时自行缴税)。 4、无中介服务费
-
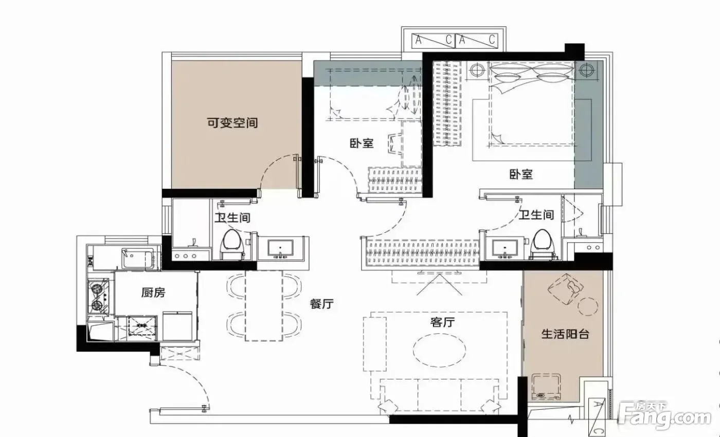
户型解读问经纪人
房子的户型设计方正,南北通透 非常彩光 飘窗和大阳台的设计非常的大气且空间感十足 布局采用的是动静分离的设计理念非常的人性化,特别实用哦,
周边配套
交通综合评分
查看全部超过贵阳50.2%的小区
-
地铁公交
5.0
本月均价 7536元/m²
环比上月 上涨 0.46%
同比去年 下跌 6.02%
猜你喜欢
同小区其它房源
户型齐全,主打户型方正,高附赠空间,主卧朝南,主卧带卫,带衣帽间,U型厨房,干湿分离,大面宽阳台三居
美的国宾府户型主要有87平-87平的户型方正,高附赠空间,主卧朝南,主卧带卫,带衣帽间,U型厨房,干湿分离,大面宽阳台的三居 、112平-112平的南北通透,全明格局,户型方正,动静分离,高附赠空间,采光充足,U型厨房,大面宽阳台的四居 。
*获取完整户型报告,同时会有免费语音讲解服务
-
6187元/㎡
本月挂牌均价
-
0.81%
环比上月
买房加房产交流群,省钱不踩雷
3000+人正在热聊
- 免费咨询
- 专业服务
- 区域解读
- 户型分析


