云岩 交通医院宿舍 2室2厅 75.00㎡ 45万
-
45万元
总价
-
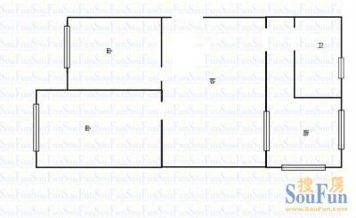
2室2厅1卫
户型
-
75㎡
建筑面积
买房加房产交流群,省钱不踩雷
3000+人正在热聊
加入群聊
-
单价
6000元/平米
- 挂牌价格解析
-
楼层
高层/8层
- 咨询楼层
-
套内
暂无数据
- 咨询套内使用面积
-
朝向
东
-
年代
2000
-
发布
2025-09-22
-
地铁
距2号线阳明祠约545米
-
深度测评
小区交通医院宿舍(云岩-师大)
-
更多
楼户比、楼层高度、交易历史、抵押信息
业主自评
-
有没有那么一首歌135
加入房天下229天
接电时间:09:00-22:00
周边配套
地址:宝山北路省公安厅旁省医附近
交通综合评分
查看全部4.0
“一般”
超过贵阳62.6%的小区
-
地铁公交
10.0
本月均价 4489元/m²
环比上月 下跌 3%
同比去年 下跌 10.7%
-
6691元/㎡
本月挂牌均价
-
0.76%
环比上月
买房加房产交流群,省钱不踩雷
3000+人正在热聊
加入群聊
联系业主
免责声明:房源信息由网站用户提供,其真实性、合法性由信息提供者负责,最终以政府部门登记备案为准。本网站不声明或保证内容之正确性和可靠性,购买该房屋时,请谨慎核查。入学情况仅凭历史经验总结,在此不承诺升学事宜。请您在签订合同之前,切勿支付任何形式的费用,以免上当受骗。

