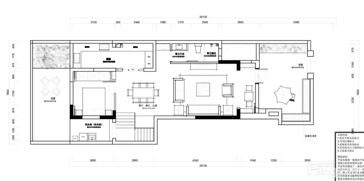
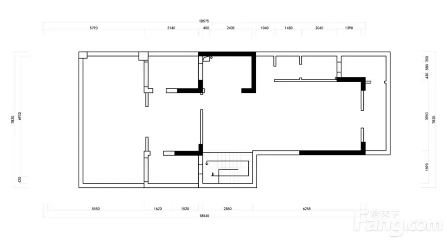
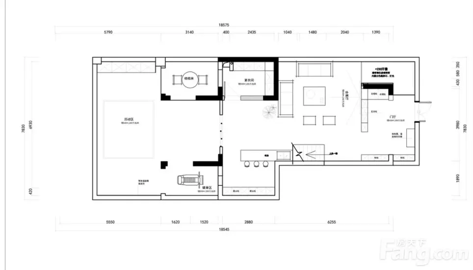
花溪 美的国宾府 5室2厅
-
220万元
总价
-
5室2厅3卫
户型
-
300㎡
建筑面积
买房加房产交流群,省钱不踩雷
3000+人正在热聊
加入群聊
-
单价
7333元/平米
- 挂牌价格解析
-
楼层
底层/3层
- 咨询楼层
-
套内
暂无数据
- 咨询套内使用面积
-
朝向
南
-
发布
2025-02-06
-
地铁
暂无数据
-
深度测评
小区美的国宾府(花溪-甲秀南路南)
-
更多
楼户比、楼层高度、交易历史、抵押信息
业主自评
-
河西湘中文印
加入房天下3051天
接电时间:09:00-22:00
周边配套
地址:甲秀南路与明珠大道交汇处
交通综合评分
查看全部2.0
“一般”
超过贵阳50.2%的小区
-
地铁公交
5.0
本月均价 7551元/m²
环比上月 上涨 0.2%
同比去年 下跌 7.7%
猜你喜欢
同小区其它房源
-
6356元/㎡
本月挂牌均价
-
0.58%
环比上月
买房加房产交流群,省钱不踩雷
3000+人正在热聊
加入群聊
联系业主
免责声明:房源信息由网站用户提供,其真实性、合法性由信息提供者负责,最终以政府部门登记备案为准。本网站不声明或保证内容之正确性和可靠性,购买该房屋时,请谨慎核查。入学情况仅凭历史经验总结,在此不承诺升学事宜。请您在签订合同之前,切勿支付任何形式的费用,以免上当受骗。

