白云 建发和玺 4室2厅
-
124万元
总价
-
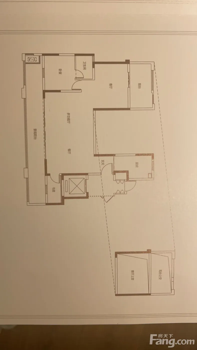
4室2厅2卫
户型
-
132.88㎡
建筑面积
买房加房产交流群,省钱不踩雷
3000+人正在热聊
加入群聊
-
单价
9332元/平米
- 挂牌价格解析
-
楼层
低层/17层
- 咨询楼层
-
套内
暂无数据
- 咨询套内使用面积
-
朝向
南
-
发布
2025-02-23
-
地铁
暂无数据
-
深度测评
小区建发和玺(白云-大山洞)
-
更多
楼户比、楼层高度、交易历史、抵押信息
业主自评
-
soufunwa214326
加入房天下3734天
接电时间:09:00-22:00
一、基本信息 • 面积:133平方米 • 户型格局:4房2厅,南北朝向,南北双阳台通透,空间布局合理,实际套内使用面积151平左右。 二、绝佳位置 • 这套房子亮点之一是其靠近中庭走廊,采光及视野都没有任何问题。远离喧嚣,尽享静谧舒适的居住氛围,空气也会比中高楼层好。其次房子距离在建的S2号线建发和玺乘车站点仅**米。 三、房屋亮点 • 户型方正:整体户型方正,没有多余的拐角浪费空间。 • 采光通风佳:得益于靠近中庭的优势以及合理的建筑设计,室内采光十分出色,良好的通风条件保证了室内空气的清新。 • 动静分区合理:跃层设计,充分保障了生活的私密性和舒适度。 四、小区配套 • 园林景观:建发和玺一期打造了独具特色的中式园林,亭台楼阁、小桥流水,一步一景,漫步其中仿佛穿越到了江南水乡,让您在繁忙的都市生活之余能享受惬意的休闲时光。 • 物业服务:配备专业贴心的物业团队,24小时安保巡逻、全方位的社区维护等,为您的生活保驾护航,让您住得安心、舒心。 • 周边设施:学校就在小区附近,医院3公里内两家3甲,商场等配套一应俱全。
一、基本信息 • 面积:133平方米 • 户型格局:4房2厅,南北朝向,南北双阳台通透,空间布局合理,实际套内使用面积151平左右。 二、绝佳位置 • 这套房子亮点之一是其靠近中庭走廊,采光及视野都没有任何问题。远离喧嚣,尽享静谧舒适的居住氛围,空气也会比中高楼层好。其次房子距离在建的S2号线建发和玺乘车站点仅**米。 三、房屋亮点 • 户型方正:整体户型方正,没有多余的拐角浪费空间。 • 采光通风佳:得益于靠近中庭的优势以及合理的建筑设计,室内采光十分出色,良好的通风条件保证了室内空气的清新。 • 动静分区合理:跃层设计,充分保障了生活的私密性和舒适度。 四、小区配套 • 园林景观:建发和玺一期打造了独具特色的中式园林,亭台楼阁、小桥流水,一步一景,漫步其中仿佛穿越到了江南水乡,让您在繁忙的都市生活之余能享受惬意的休闲时光。 • 物业服务:配备专业贴心的物业团队,24小时安保巡逻、全方位的社区维护等,为您的生活保驾护航,让您住得安心、舒心。 • 周边设施:学校就在小区附近,医院3公里内两家3甲,商场等配套一应俱全。
周边配套
地址:白云数博大道旁(同心东路与铝兴北路交汇处)
交通综合评分
查看全部6.2
“较好”
超过贵阳0.0%的小区
-
地铁公交
8.0
-
驾车出行
10.0
本月均价 9734元/m²
环比上月 下跌 0.36%
同比去年 下跌 5.61%
猜你喜欢
同小区其它房源
-
4812元/㎡
本月挂牌均价
-
0.56%
环比上月
买房加房产交流群,省钱不踩雷
3000+人正在热聊
加入群聊
联系业主
免责声明:房源信息由网站用户提供,其真实性、合法性由信息提供者负责,最终以政府部门登记备案为准。本网站不声明或保证内容之正确性和可靠性,购买该房屋时,请谨慎核查。入学情况仅凭历史经验总结,在此不承诺升学事宜。请您在签订合同之前,切勿支付任何形式的费用,以免上当受骗。

