赠送10平 可改三室 电梯7楼近河东市场 南北户型不把山
-
36万元
总价
-
2室2厅1卫
户型
-
93㎡
建筑面积
-
单价
3871元/平米
- 挂牌价格解析
-
楼层
中层/16层
- 咨询楼层
-
套内
暂无数据
- 咨询套内使用面积
-
朝向
南北
-
发布
2025-12-15
-
地铁
暂无数据
-
深度测评
小区香城家园(顺城区-顺城)
-
更多
楼户比、楼层高度、交易历史、抵押信息
业主自评
-
一蓑烟雨任平生315
加入房天下238天
接电时间:9:00-23:00
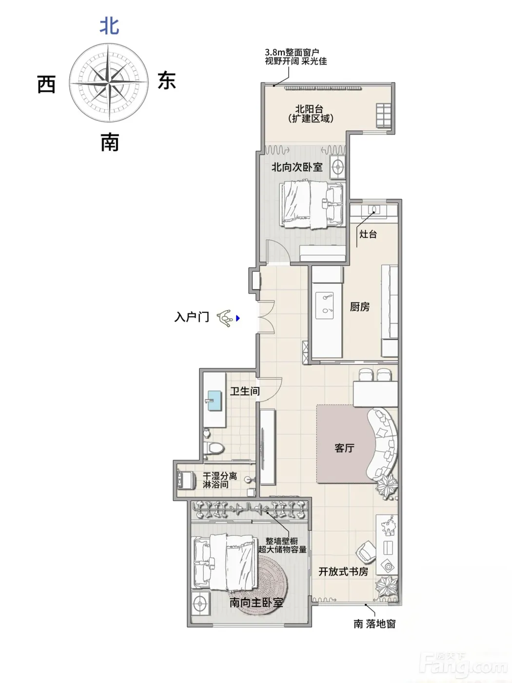
优势:【赠送10平面积,比同户型的大,书房可改成三室】 房证93平 房子实得103平,厨房还能继续扩出4平方米,大窗户采光视野好! 两室 卧室大,卧室带阳台(书房可改三室)南北通透,全房地热 供暖特别好稳定27°,冬季不采暖22-24°~ 封闭园区,物业费低1.1元/平。 南北户型,中间户不把山,两梯六户,两边都是邻居家 电梯7楼,总高16层。出门50m河东市场,生活便捷。好停车 产权清晰无任何纠纷,无贷款无抵押,居住体验满分。 地段好,繁华地段四通八达,13路、30、84、88、36、79、108、109、602、27、54交通便捷,市院、人民医院、顺城万达、河东菜市场…应有尽有
优势:【赠送10平面积,比同户型的大,书房可改成三室】 房证93平 房子实得103平,厨房还能继续扩出4平方米,大窗户采光视野好! 两室 卧室大,卧室带阳台(书房可改三室)南北通透,全房地热 供暖特别好稳定27°,冬季不采暖22-24°~ 封闭园区,物业费低1.1元/平。 南北户型,中间户不把山,两梯六户,两边都是邻居家 电梯7楼,总高16层。出门50m河东市场,生活便捷。好停车 产权清晰无任何纠纷,无贷款无抵押,居住体验满分。 地段好,繁华地段四通八达,13路、30、84、88、36、79、108、109、602、27、54交通便捷,市院、人民医院、顺城万达、河东菜市场…应有尽有
周边配套
地址:顺城区临江路东段河东装饰城东
交通综合评分
查看全部7.6
“较好”
超过抚顺17.8%的小区
-
地铁公交
10.0
-
驾车出行
8.0
-
城际交通
4.0
本月均价 暂无均价
环比上月 持平
同比去年 持平 持平
联系业主
免责声明:房源信息由网站用户提供,其真实性、合法性由信息提供者负责,最终以政府部门登记备案为准。本网站不声明或保证内容之正确性和可靠性,购买该房屋时,请谨慎核查。入学情况仅凭历史经验总结,在此不承诺升学事宜。请您在签订合同之前,切勿支付任何形式的费用,以免上当受骗。

