配套齐全,总价低,单价也低,2房当中很不错的选择
-
33.5万
总价
-
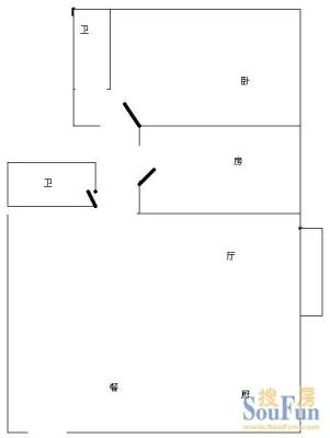
2室1厅
户型
-
64.6㎡
建筑面积
买房加房产交流群,省钱不踩雷
3000+人正在热聊
加入群聊
-
单价
5186元/平米
- 挂牌价格解析
-
楼层
中楼层/8层
- 咨询楼层
-
套内
暂无数据
- 咨询套内使用面积
-
楼型
塔楼
-
朝向
南
-
装修
简装
-
供暖
暂无数据
-
发布
2025-05-19
-
深度测评
小区银城花园(顺德-容桂)
-
更多
楼户比、楼层高度、交易历史、抵押信息
周边配套
地址:顺德容桂体育路
交通综合评分
查看全部4.7
“一般”
超过佛山10.3%的小区
-
地铁公交
5.0
-
驾车出行
9.0
本月均价 4511元/m²
环比上月 下跌 5.57%
同比去年 下跌 11.89%
猜你喜欢
同小区其它房源
-
7830元/㎡
本月挂牌均价
-
0.21%
环比上月
买房加房产交流群,省钱不踩雷
3000+人正在热聊
加入群聊
免责声明:房源信息由网站用户提供,其真实性、合法性由信息提供者负责,最终以政府部门登记备案为准。本网站不声明或保证内容之正确性和可靠性,购买该房屋时,请谨慎核查。入学情况仅凭历史经验总结,在此不承诺升学事宜。请您在签订合同之前,切勿支付任何形式的费用,以免上当受骗。



