塘厦新政区 南北对流 湖景4房 顶楼复式 利用率高
-
345万
总价
-
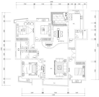
4室2厅3卫
户型
-
211.49㎡
建筑面积
-
单价
16313元/平米
- 挂牌价格解析
-
楼层
高层/17层
- 咨询楼层
-
套内
210.49㎡
- 咨询套内使用面积
-
朝向
东
-
装修
毛坯
-
年代
2015
-
发布
2025-05-20
-
咨询总首付
首付约150.5万
首付税费及佣金情况 -
深度测评
小区新世纪亦居(塘厦-新行政中心)
-
更多
楼户比、楼层高度、交易历史、抵押信息
房源描述(1)
周边配套
地址:东莞市塘厦镇塘坑水库旁
交通综合评分
查看全部7.0
“较好”
超过东莞19.6%的小区
-
地铁公交
10.0
-
驾车出行
10.0
本月均价 18547元/m²
环比上月 上涨 2.75%
同比去年 下跌 7.51%
猜你喜欢
同小区其它房源
户型齐全,主打户型方正,明厨,明卫,独立衣帽间,客厅朝南,全明格局,双阳台,双卧朝南四居
新世纪亦居户型主要有211平-212平的户型方正,明厨,明卫,独立衣帽间,客厅朝南,全明格局,双阳台,双卧朝南的四居 、100平-100平的户型方正,明卫,明厨的三居 。
*获取完整户型报告,同时会有免费语音讲解服务
-
21780元/㎡
本月挂牌均价
-
0.97%
环比上月
- 免费咨询
- 专业服务
- 区域解读
- 户型分析
免责声明:房源信息由网站用户提供,其真实性、合法性由信息提供者负责,最终以政府部门登记备案为准。本网站不声明或保证内容之正确性和可靠性,购买该房屋时,请谨慎核查。入学情况仅凭历史经验总结,在此不承诺升学事宜。请您在签订合同之前,切勿支付任何形式的费用,以免上当受骗。


