颐龙湾三期大独栋!大花园业主大型土建900平外墙门窗做好!
-
1780万
总价
-
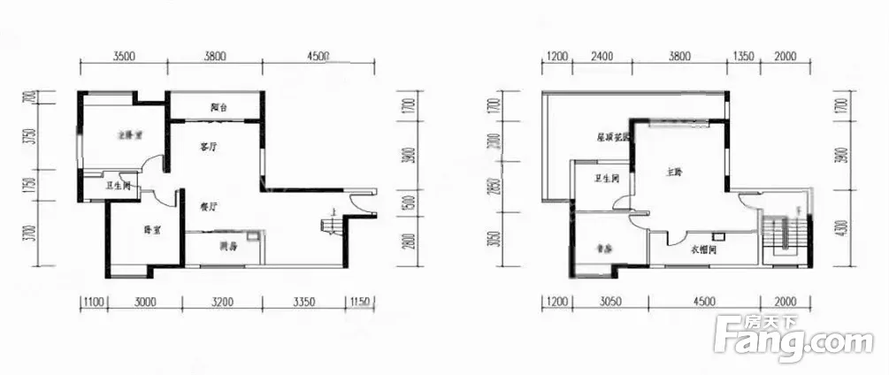
14室3厅7卫
户型
-
380㎡
建筑面积
-
单价
46842元/平米
- 挂牌价格解析
-
楼层
底层/3层
- 咨询楼层
-
套内
暂无数据
- 咨询套内使用面积
-
楼型
板楼
-
朝向
南北
-
装修
毛坯
-
年代
2020
-
发布
2025-05-15
-
地铁
暂无数据
-
咨询总首付
首付约775.3万
首付税费及佣金情况 -
深度测评
小区新世纪颐龙湾(高埗-高埗)
-
更多
楼户比、楼层高度、交易历史、抵押信息
房源描述(1)
-
核心卖点
1、户型方正实用,公摊面积少,实用面积高,通风采光效果好,视野开阔。 2、周边配套齐全,交通便利,城市商业圈。 3、居住环境优越,居住舒适,小区绿化高
-
业主心态
1,卖房原因:业主多余房产,诚心出售! 2,看房时间:随时看房,直接电话联系本人即可
-
小区配套
位置:小区地理位置佳,绿化率高,居民素质高 配套:有健身器材,小型篮球场,可供小区居民使用 车位:停车位充足,建有地上停车场和地下车库 保安:小区内24保安巡逻
-
服务介绍
本人从事房地产多年,公司有大量好房源,欢迎进入我的店铺查看,欢迎随时电话咨询,相信我的专业,为您置业安家保驾护航。
周边配套
地址:颐龙东路与莞潢南路交汇处东北角700米
交通综合评分
查看全部5.8
“一般”
超过东莞19.7%的小区
-
地铁公交
10.0
-
驾车出行
6.0
本月均价 15643元/m²
环比上月 下跌 0.86%
同比去年 下跌 9.4%
猜你喜欢
同小区其它房源
-
16219元/㎡
本月挂牌均价
-
0.05%
环比上月
- 免费咨询
- 专业服务
- 区域解读
- 户型分析
免责声明:房源信息由网站用户提供,其真实性、合法性由信息提供者负责,最终以政府部门登记备案为准。本网站不声明或保证内容之正确性和可靠性,购买该房屋时,请谨慎核查。入学情况仅凭历史经验总结,在此不承诺升学事宜。请您在签订合同之前,切勿支付任何形式的费用,以免上当受骗。


