万科棠樾(别墅)八期 一线湖景 四面怀山淮水 风生水起急售
-
1450万
总价
-
8室2厅5卫
户型
-
470㎡
建筑面积
-
单价
30851元/平米
- 挂牌价格解析
-
楼层
4层
- 咨询楼层
-
套内
469㎡
- 咨询套内使用面积
-
楼型
独栋
-
朝向
南
-
装修
毛坯
-
年代
2023
-
发布
2025-04-17
-
地铁
暂无数据
-
咨询总首付
首付约631.8万
首付税费及佣金情况 -
深度测评
小区万科棠樾别墅(塘厦-虾公岩水库)
-
更多
楼户比、楼层高度、交易历史、抵押信息
房源描述(1)
-
核心卖点问经纪人
【房屋概述】大平层设计,8室2厅5卫,户型方正,无浪费面积,餐厅客厅可分离,空间布局合理; 【朝向与通风】南北通透,空气流通,朝向良好,阳光充足,居住环境舒适; 【特色】小区内部环境优雅,绿化丰富,通过合理规划,提供自然、舒适的居住环境; 【优势】推荐理由:此房适合家庭居住,空间宽敞,功能区分明,享受 生活。
-
业主心态问经纪人
房主因金周转需求,诚意出售此房。手续齐全,随时可配合看房,诚意满满。业主积极配合,确保交易顺利进行。
-
小区配套问经纪人
小区地理位置佳,绿化环境优越整洁,居民素质高,物业管理完善,适宜居住
-
服务介绍问经纪人
1、本人以诚实做人、诚信做事为原则,专注别墅、豪宅。 2、在东莞临深房产市场十余年,专业、自信、热情,有丰富好房源,欢迎有缘的朋友进入我的店铺查看或来电咨询! 3、秉承“公开讯、公平交易、不炒楼、不
-
税费分析房贷计算
关于本房的税费信息情况,请电话联系我,我将详细的为您讲解!
-
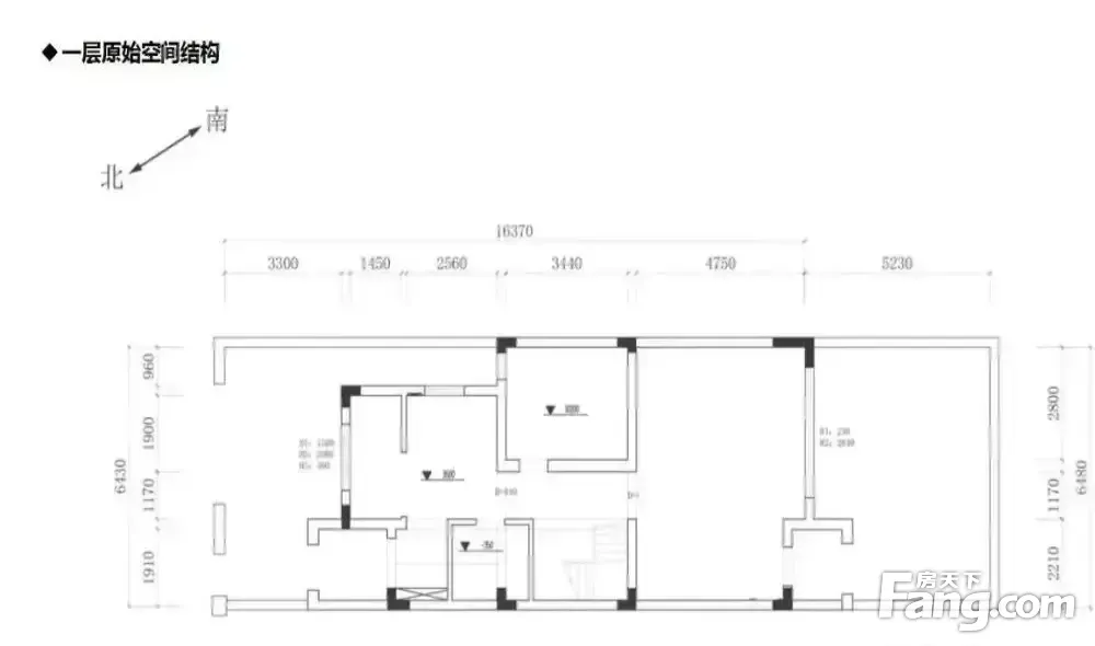
户型解读问经纪人
房屋拥有相对宽松的尺寸,布局通透,动静分离,设计豪华
周边配套
地址:东莞市塘厦镇大屏障国家森林公园旁
交通综合评分
查看全部7.0
“较好”
超过东莞25.9%的小区
-
地铁公交
10.0
-
驾车出行
10.0
猜你喜欢
同小区其它房源
-
31080元/㎡
本月挂牌均价
-
0.04%
环比上月
- 免费咨询
- 专业服务
- 区域解读
- 户型分析
免责声明:房源信息由网站用户提供,其真实性、合法性由信息提供者负责,最终以政府部门登记备案为准。本网站不声明或保证内容之正确性和可靠性,购买该房屋时,请谨慎核查。入学情况仅凭历史经验总结,在此不承诺升学事宜。请您在签订合同之前,切勿支付任何形式的费用,以免上当受骗。


