旌阳区 北城1号 3室2厅
-
52.6万元
总价
-
3室2厅2卫
户型
-
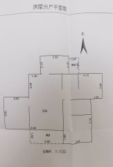
109.8㎡
建筑面积
-
单价
4791元/平米
- 挂牌价格解析
-
楼层
低层/17层
- 咨询楼层
-
套内
暂无数据
- 咨询套内使用面积
-
朝向
东
-
发布
2025-04-17
-
地铁
暂无数据
-
深度测评
小区北城1号(旌阳区-旌阳周边)
-
更多
楼户比、楼层高度、交易历史、抵押信息
业主自评
-
JACKLHAI
加入房天下3207天
接电时间:09:00-22:00
周边配套
地址:黄许镇路鹤路
交通综合评分
查看全部7.0
“较好”
超过德阳0.0%的小区
-
地铁公交
10.0
-
驾车出行
10.0
本月均价 暂无均价
环比上月 持平
同比去年 持平 持平
猜你喜欢
同小区其它房源
-
3753元/㎡
本月挂牌均价
-
9.39%
环比上月
联系业主
免责声明:房源信息由网站用户提供,其真实性、合法性由信息提供者负责,最终以政府部门登记备案为准。本网站不声明或保证内容之正确性和可靠性,购买该房屋时,请谨慎核查。入学情况仅凭历史经验总结,在此不承诺升学事宜。请您在签订合同之前,切勿支付任何形式的费用,以免上当受骗。

