石油小区户型周正诚心出售带杂物间
-
62万
总价
-
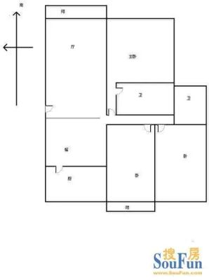
3室2厅
户型
-
97㎡
建筑面积
买房加房产交流群,省钱不踩雷
3000+人正在热聊
加入群聊
-
单价
6392元/平米
- 挂牌价格解析
-
楼层
高楼层/6层
- 咨询楼层
-
套内
暂无数据
- 咨询套内使用面积
-
楼型
板楼
-
朝向
南北
-
装修
其他
-
供暖
暂无数据
-
发布
2025-07-07
-
地铁
距3号线桂花公园站约576米
-
咨询总首付
首付约10.6万
首付税费及佣金情况 -
深度测评
小区野坡社区(雨花-东塘)
-
更多
楼户比、楼层高度、交易历史、抵押信息
周边配套
地址:劳动东路和曙光路交叉口
交通综合评分
查看全部7.4
“较好”
超过长沙16.9%的小区
-
地铁公交
10.0
-
驾车出行
7.0
-
城际交通
4.5
本月均价 5525元/m²
环比上月 下跌 2.68%
同比去年 上涨 8.91%
猜你喜欢
同小区其它房源
户型齐全,主打户型方正,明卫,明厨,客厅朝南,双卧朝南,主卧朝南三居
野坡社区户型主要有77平-77平的户型方正,明卫,明厨,客厅朝南,双卧朝南,主卧朝南的三居 。
*获取完整户型报告,同时会有免费语音讲解服务
-
9402元/㎡
本月挂牌均价
-
1.33%
环比上月
买房加房产交流群,省钱不踩雷
3000+人正在热聊
加入群聊
免责声明:房源信息由网站用户提供,其真实性、合法性由信息提供者负责,最终以政府部门登记备案为准。本网站不声明或保证内容之正确性和可靠性,购买该房屋时,请谨慎核查。入学情况仅凭历史经验总结,在此不承诺升学事宜。请您在签订合同之前,切勿支付任何形式的费用,以免上当受骗。



