岳麓山北,西湖公园旁边,2号线地铁口,户型方正
-
86.8万
总价
-
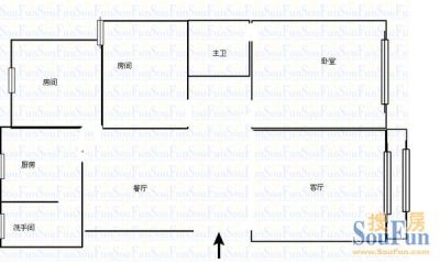
3室1厅
户型
-
113.45㎡
建筑面积
买房加房产交流群,省钱不踩雷
3000+人正在热聊
加入群聊
-
单价
7651元/平米
- 挂牌价格解析
-
楼层
高楼层/6层
- 咨询楼层
-
套内
暂无数据
- 咨询套内使用面积
-
楼型
板楼
-
朝向
南
-
装修
其他
-
供暖
自供暖
-
发布
2022-07-21
-
地铁
距2号线金星路站约357米
-
咨询总首付
首付约15.1万
首付税费及佣金情况 -
深度测评
小区卓峰家园(岳麓-枫林一路)
-
更多
楼户比、楼层高度、交易历史、抵押信息
周边配套
地址:枫林路与金星大道交汇处(共和世家西侧)
交通综合评分
查看全部4.0
“一般”
超过长沙1.0%的小区
-
地铁公交
10.0
本月均价 6782元/m²
环比上月 下跌 2.25%
同比去年 下跌 15.85%
猜你喜欢
同小区其它房源
户型齐全,主打户型方正,明厨,明卫二居
卓峰家园户型主要有77平-101平的户型方正,明厨,明卫的二居 、111平-114平的户型方正,明厨,明卫,主卧朝南的三居 。
*获取完整户型报告,同时会有免费语音讲解服务
-
9206元/㎡
本月挂牌均价
-
1.21%
环比上月
买房加房产交流群,省钱不踩雷
3000+人正在热聊
加入群聊
免责声明:房源信息由网站用户提供,其真实性、合法性由信息提供者负责,最终以政府部门登记备案为准。本网站不声明或保证内容之正确性和可靠性,购买该房屋时,请谨慎核查。入学情况仅凭历史经验总结,在此不承诺升学事宜。请您在签订合同之前,切勿支付任何形式的费用,以免上当受骗。



