碧桂园天玺湾能看见湖景的一房.绝绝子的户型
-
30.5万
总价
-
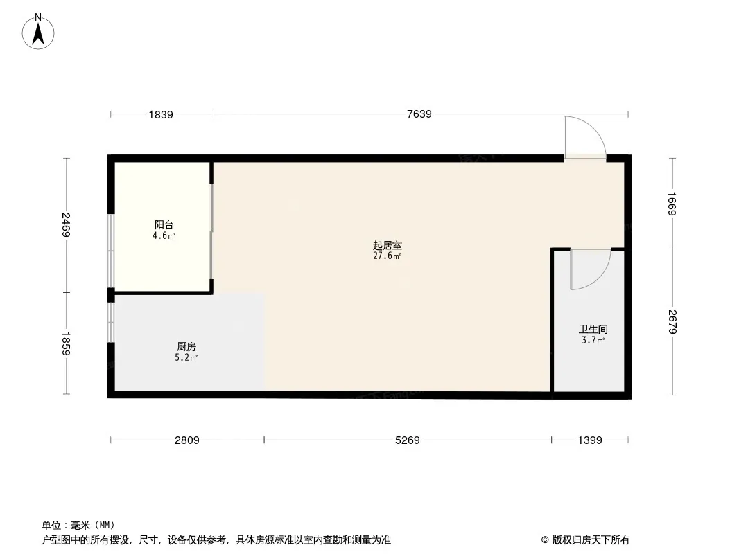
1室
户型
-
49㎡
建筑面积
买房加房产交流群,省钱不踩雷
3000+人正在热聊
加入群聊
-
单价
6225元/平米
- 挂牌价格解析
-
楼层
低楼层/61层
- 咨询楼层
-
套内
暂无数据
- 咨询套内使用面积
-
楼型
板塔结合
-
朝向
南
-
装修
精装
-
供暖
暂无数据
-
发布
2022-12-23
-
地铁
暂无数据
-
咨询总首付
首付约6.4万
首付税费及佣金情况 -
深度测评
小区碧桂园天玺湾(星沙-松雅湖)
-
更多
楼户比、楼层高度、交易历史、抵押信息
周边配套
地址:星沙镇星沙大道325号(国家湿地公园旁)
交通综合评分
查看全部5.0
“一般”
超过长沙96.3%的小区
-
地铁公交
5.0
-
驾车出行
10.0
本月均价 7255元/m²
环比上月 上涨 0.03%
同比去年 下跌 15.19%
猜你喜欢
同小区其它房源
户型齐全,主打户型方正,观景飘窗一居
碧桂园天玺湾户型主要有46平-95平的户型方正,观景飘窗的一居 、183平-413平的主卧带卫,户型方正,带衣帽间的四居 、151平-237平的主卧带卫,户型方正的三居 。
*获取完整户型报告,同时会有免费语音讲解服务
-
7192元/㎡
本月挂牌均价
-
5.23%
环比上月
买房加房产交流群,省钱不踩雷
3000+人正在热聊
加入群聊
免责声明:房源信息由网站用户提供,其真实性、合法性由信息提供者负责,最终以政府部门登记备案为准。本网站不声明或保证内容之正确性和可靠性,购买该房屋时,请谨慎核查。入学情况仅凭历史经验总结,在此不承诺升学事宜。请您在签订合同之前,切勿支付任何形式的费用,以免上当受骗。



