带20平方独立小院子、育才、一楼有架空 湘雅附二后门
-
56.8万
总价
-
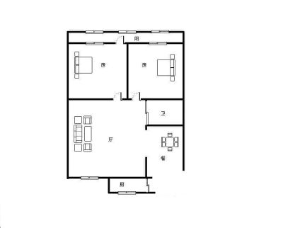
2室1厅
户型
-
63.56㎡
建筑面积
买房加房产交流群,省钱不踩雷
3000+人正在热聊
加入群聊
-
单价
8937元/平米
- 挂牌价格解析
-
楼层
低楼层/5层
- 咨询楼层
-
套内
暂无数据
- 咨询套内使用面积
-
楼型
板楼
-
朝向
南
-
装修
简装
-
供暖
自供暖
-
发布
2024-04-17
-
地铁
距2号线迎宾路口站约441米
-
咨询总首付
首付约13.2万
首付税费及佣金情况 -
深度测评
小区解放路有色冶金属设计院单位房(芙蓉-识字岭)
-
更多
楼户比、楼层高度、交易历史、抵押信息
周边配套
地址:解放中路老省政府对面
交通综合评分
查看全部5.3
“一般”
超过长沙66.1%的小区
-
地铁公交
10.0
-
城际交通
4.5
本月均价 6332元/m²
环比上月 下跌 17.45%
同比去年 下跌 33.27%
猜你喜欢
同小区其它房源
户型齐全,主打户型方正,明厨,主卧朝南二居
解放路有色冶金属设计院单位房户型主要有50平-69平的户型方正,明厨,主卧朝南的二居 、79平-80平的户型方正,明卫,明厨,客厅朝南,全明格局,双卧朝南,主卧朝南的三居 、52平-63平的户型方正,明卫,明厨,客厅朝南,主卧朝南的一居 。
*获取完整户型报告,同时会有免费语音讲解服务
-
8635元/㎡
本月挂牌均价
-
0.71%
环比上月
买房加房产交流群,省钱不踩雷
3000+人正在热聊
加入群聊
免责声明:房源信息由网站用户提供,其真实性、合法性由信息提供者负责,最终以政府部门登记备案为准。本网站不声明或保证内容之正确性和可靠性,购买该房屋时,请谨慎核查。入学情况仅凭历史经验总结,在此不承诺升学事宜。请您在签订合同之前,切勿支付任何形式的费用,以免上当受骗。



