满五唯一,自主居家,精装修,家具家电齐全保养好
-
31.8万
总价
-
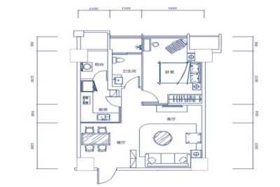
1室1厅
户型
-
47.33㎡
建筑面积
买房加房产交流群,省钱不踩雷
3000+人正在热聊
加入群聊
-
单价
6719元/平米
- 挂牌价格解析
-
楼层
高楼层/27层
- 咨询楼层
-
套内
暂无数据
- 咨询套内使用面积
-
楼型
塔楼
-
朝向
南北
-
装修
精装
-
供暖
自供暖
-
发布
2023-08-30
-
地铁
距5号线土桥约975米
-
咨询总首付
首付约5.9万
首付税费及佣金情况 -
深度测评
小区盛地尊域(星沙-万家丽北路)
-
更多
楼户比、楼层高度、交易历史、抵押信息
周边配套
地址:湘龙路与南塘路交汇处东南角(月湖公园向北1800米)
交通综合评分
查看全部7.0
“较好”
超过长沙40.6%的小区
-
地铁公交
10.0
-
驾车出行
10.0
本月均价 6529元/m²
环比上月 下跌 2.04%
同比去年 下跌 14.15%
猜你喜欢
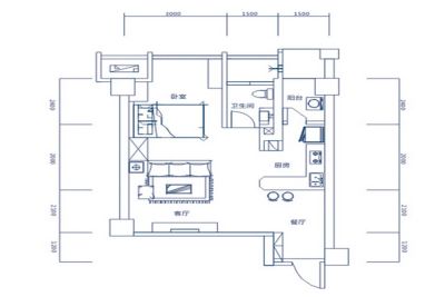
同小区其它房源
户型齐全,主打户型方正,明厨,明卫,主卧朝南三居
盛地尊域户型主要有86平-119平的户型方正,明厨,明卫,主卧朝南的三居 、115平-126平的明卫,明厨,双阳台,双卧朝南,主卧朝南的四居 、47平-53平的明卫的一居 。
*获取完整户型报告,同时会有免费语音讲解服务
-
7752元/㎡
本月挂牌均价
-
0.66%
环比上月
买房加房产交流群,省钱不踩雷
3000+人正在热聊
加入群聊
免责声明:房源信息由网站用户提供,其真实性、合法性由信息提供者负责,最终以政府部门登记备案为准。本网站不声明或保证内容之正确性和可靠性,购买该房屋时,请谨慎核查。入学情况仅凭历史经验总结,在此不承诺升学事宜。请您在签订合同之前,切勿支付任何形式的费用,以免上当受骗。



