捡漏!!650万 龙熙台山景别墅 赠送大,得房率高,位置好!
-
650万
总价
-
4室2厅3卫
户型
-
351.32㎡
建筑面积
买房加房产交流群,省钱不踩雷
3000+人正在热聊
-
单价
18502元/平米
- 挂牌价格解析
-
楼层
1层
- 咨询楼层
-
套内
暂无数据
- 咨询套内使用面积
-
楼型
独栋
-
朝向
东
-
装修
毛坯
-
年代
2019
-
发布
2025-02-24
-
地铁
距3号线南延线桐溪站约1078米
-
咨询总首付
首付约151.7万
首付税费及佣金情况 -
深度测评
小区致地龙熙台(岳麓-洋湖湿地公园)
-
更多
楼户比、楼层高度、交易历史、抵押信息
房源描述(1)
-
核心卖点问经纪人
1、本房产位于大王山山体,清静无噪音; 2、独门独户,户户都带大花园,花园可改造空间极大 3、地下室可挖两层,可以根据你的需求改造 4、此房户型方方正,实用率非常高,客厅很大,自住舒适,采光视野非常好,赠送大露台,可供搭建凉台、阳光房;
-
业主心态问经纪人
1、业主诚心出售,产权清晰,随时看房 2、房东产权资料齐全,在本公司有备份 3、每套房子都会现场勘查,为您提供更高效满意的服务
-
小区配套问经纪人
位置:小区地理位置佳,绿化率高,居民素质高 配套:有健身器材,小型篮球场,可供小区居民使用 车位:停车位充足,建有地上停车场和地下车库 保安:小区内24保安巡逻
-
服务介绍问经纪人
本人从事房地产多年,公司有大量好房源,欢迎进入我的店铺查看,欢迎随时电话咨询,相信我的专业,为您置业安家保驾护航。
-
税费分析房贷计算
首套房个税2个点,契税1.5个点。 二套房个税2个点,契税2个点。
-
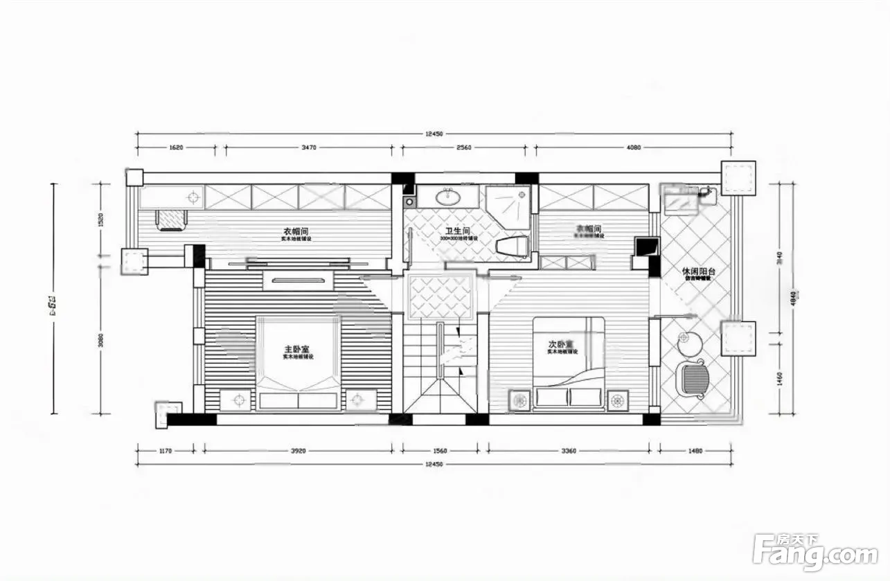
户型解读问经纪人
1户型南北通透,得房率高。 2位置好,有山有湖。 3双车位,带电梯井。
周边配套
交通综合评分
查看全部超过长沙5.5%的小区
-
地铁公交
9.0
-
驾车出行
10.0
猜你喜欢
同小区其它房源
户型齐全,主打南北通透,户型方正,中西双厨,双阳台五居
致地龙熙台户型主要有306平-351平的南北通透,户型方正,中西双厨,双阳台的五居 、269平-269平的南北通透,主卧套间,中西双厨,双阳台的四居 、357平-357平的采光充足,独立玄关,带衣帽间,中西双厨的其他居 。
*获取完整户型报告,同时会有免费语音讲解服务
-
11523元/㎡
本月挂牌均价
-
0.45%
环比上月
买房加房产交流群,省钱不踩雷
3000+人正在热聊
- 免费咨询
- 专业服务
- 区域解读
- 户型分析


