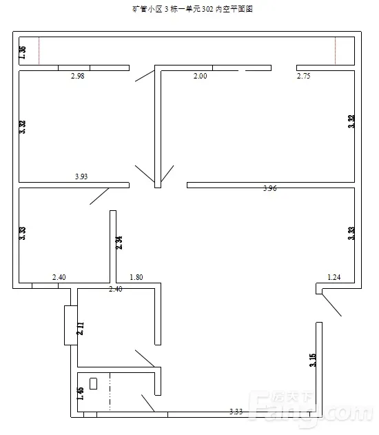
石门 矿管小区 3室2厅 109.95㎡
-
26.8万元
总价
-
3室2厅1卫
户型
-
109.95㎡
建筑面积
-
单价
2437元/平米
- 挂牌价格解析
-
楼层
中层/6层
- 咨询楼层
-
套内
暂无数据
- 咨询套内使用面积
-
朝向
南北
-
发布
2026-03-09
-
深度测评
小区矿管小区(石门-石门)
-
更多
楼户比、楼层高度、交易历史、抵押信息
业主自评
-
老如
加入房天下163天
接电时间:09:00-22:00
物业管理每年几百元,小区随时停车方便。
物业管理每年几百元,小区随时停车方便。
周边配套
地址:澧阳东路
-
3198元/㎡
本月挂牌均价
-
0.48%
环比上月
联系业主
免责声明:房源信息由网站用户提供,其真实性、合法性由信息提供者负责,最终以政府部门登记备案为准。本网站不声明或保证内容之正确性和可靠性,购买该房屋时,请谨慎核查。入学情况仅凭历史经验总结,在此不承诺升学事宜。请您在签订合同之前,切勿支付任何形式的费用,以免上当受骗。

