棕庭苑4室2厅东南
-
108万
总价
-
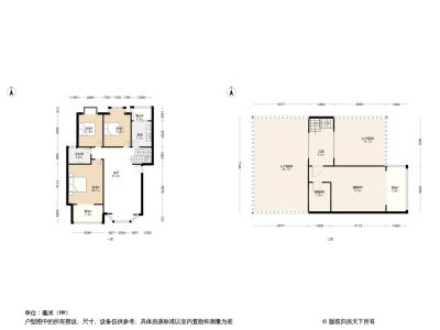
4室2厅
户型
-
168㎡
建筑面积
买房加房产交流群,省钱不踩雷
3000+人正在热聊
加入群聊
-
单价
6429元/平米
- 挂牌价格解析
-
楼层
高楼层/6层
- 咨询楼层
-
套内
暂无数据
- 咨询套内使用面积
-
楼型
板楼
-
朝向
东南
-
装修
其他
-
供暖
暂无数据
-
年代
2003
-
发布
2025-12-30
-
地铁
距17号线人民塘站约881米
-
咨询总首付
首付约33.1万
首付税费及佣金情况 -
深度测评
小区棕庭苑(温江-温江城区)
-
更多
楼户比、楼层高度、交易历史、抵押信息
-
核验码
20262172447
周边配套
地址:柳城大道西段111号
交通综合评分
查看全部7.0
“较好”
超过成都0.1%的小区
-
地铁公交
10.0
-
驾车出行
10.0
本月均价 5225元/m²
环比上月 上涨 2%
同比去年 下跌 0.43%
猜你喜欢
同小区其它房源
-
7408元/㎡
本月挂牌均价
-
0.58%
环比上月
买房加房产交流群,省钱不踩雷
3000+人正在热聊
加入群聊
免责声明:房源信息由网站用户提供,其真实性、合法性由信息提供者负责,最终以政府部门登记备案为准。本网站不声明或保证内容之正确性和可靠性,购买该房屋时,请谨慎核查。入学情况仅凭历史经验总结,在此不承诺升学事宜。请您在签订合同之前,切勿支付任何形式的费用,以免上当受骗。



