红城 1室0厅 东北
-
26万
总价
-
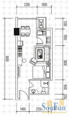
1室
户型
-
45.69㎡
建筑面积
买房加房产交流群,省钱不踩雷
3000+人正在热聊
加入群聊
-
单价
5691元/平米
- 挂牌价格解析
-
楼层
中楼层/17层
- 咨询楼层
-
套内
暂无数据
- 咨询套内使用面积
-
楼型
板楼
-
朝向
东北
-
装修
简装
-
供暖
自供暖
-
发布
2025-10-15
-
地铁
距3号线太平园站约660米
-
咨询总首付
首付约8.6万
首付税费及佣金情况 -
深度测评
小区红城(武侯-红牌楼)
-
更多
楼户比、楼层高度、交易历史、抵押信息
-
核验码
20251982432
周边配套
地址:九兴大道佳灵路7号
交通综合评分
查看全部7.0
“较好”
超过成都76.3%的小区
-
地铁公交
10.0
-
驾车出行
10.0
本月均价 18517元/m²
环比上月 下跌 2.38%
同比去年 下跌 4.56%
猜你喜欢
同小区其它房源
户型齐全,主打明厨,客厅朝南二居
红城户型主要有45平-94平的明厨,客厅朝南的二居 、37平-79平的明厨的一居 、61平-113平的户型方正,明卫,双阳台,双卧朝南,主卧朝南的三居 。
*获取完整户型报告,同时会有免费语音讲解服务
-
15794元/㎡
本月挂牌均价
-
0.39%
环比上月
买房加房产交流群,省钱不踩雷
3000+人正在热聊
加入群聊
免责声明:房源信息由网站用户提供,其真实性、合法性由信息提供者负责,最终以政府部门登记备案为准。本网站不声明或保证内容之正确性和可靠性,购买该房屋时,请谨慎核查。入学情况仅凭历史经验总结,在此不承诺升学事宜。请您在签订合同之前,切勿支付任何形式的费用,以免上当受骗。



