南尚国际 1室1厅 东
-
29万
总价
-
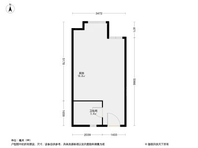
1室1厅
户型
-
39.72㎡
建筑面积
买房加房产交流群,省钱不踩雷
3000+人正在热聊
加入群聊
-
单价
7302元/平米
- 挂牌价格解析
-
楼层
低楼层/16层
- 咨询楼层
-
套内
29.22㎡
- 咨询套内使用面积
-
楼型
板塔结合
-
朝向
东
-
装修
简装
-
供暖
自供暖
-
年代
1999
-
发布
2025-09-19
-
地铁
距30号线府城桥站约547米
-
咨询总首付
首付约7.5万
首付税费及佣金情况 -
深度测评
小区天府长城南尚国际(高新-天府长城)
-
更多
楼户比、楼层高度、交易历史、抵押信息
-
核验码
20251920983
周边配套
地址:天久北巷8号(凯丽滨江旁)
交通综合评分
查看全部7.0
“较好”
超过成都29.8%的小区
-
地铁公交
10.0
-
驾车出行
10.0
本月均价 8377元/m²
环比上月 下跌 3.16%
同比去年 上涨 1.05%
猜你喜欢
同小区其它房源
-
25364元/㎡
本月挂牌均价
-
2.82%
环比上月
买房加房产交流群,省钱不踩雷
3000+人正在热聊
加入群聊
免责声明:房源信息由网站用户提供,其真实性、合法性由信息提供者负责,最终以政府部门登记备案为准。本网站不声明或保证内容之正确性和可靠性,购买该房屋时,请谨慎核查。入学情况仅凭历史经验总结,在此不承诺升学事宜。请您在签订合同之前,切勿支付任何形式的费用,以免上当受骗。



