牧电路12号 3室1厅 东南
-
85万
总价
-
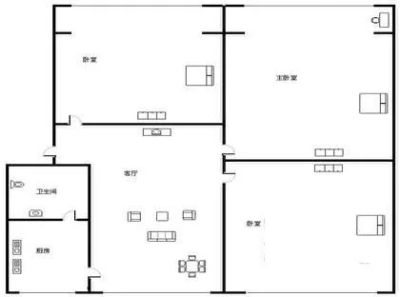
3室1厅
户型
-
69.81㎡
建筑面积
买房加房产交流群,省钱不踩雷
3000+人正在热聊
加入群聊
-
单价
12176元/平米
- 挂牌价格解析
-
楼层
高楼层/7层
- 咨询楼层
-
套内
暂无数据
- 咨询套内使用面积
-
楼型
板楼
-
朝向
东南
-
装修
简装
-
供暖
自供暖
-
年代
1988
-
发布
2024-09-13
-
地铁
距13号线杜甫草堂站约375米
-
咨询总首付
首付约21.5万
首付税费及佣金情况 -
深度测评
小区牧电路12号院(青羊-杜甫草堂)
-
更多
楼户比、楼层高度、交易历史、抵押信息
-
核验码
20241083224
周边配套
地址:牧电路12号
交通综合评分
查看全部4.0
“一般”
超过成都49.5%的小区
-
地铁公交
10.0
本月均价 11917元/m²
环比上月 上涨 0.23%
同比去年 下跌 6.94%
猜你喜欢
同小区其它房源
户型齐全,主打明厨,明卫,主卧朝南二居
牧电路12号院户型主要有45平-75平的明厨,明卫,主卧朝南的二居 、44平-48平的明卫,明厨的一居 、69平-72平的户型方正,双卧朝南,主卧朝南的三居 。
*获取完整户型报告,同时会有免费语音讲解服务
-
17353元/㎡
本月挂牌均价
-
0.48%
环比上月
买房加房产交流群,省钱不踩雷
3000+人正在热聊
加入群聊
免责声明:房源信息由网站用户提供,其真实性、合法性由信息提供者负责,最终以政府部门登记备案为准。本网站不声明或保证内容之正确性和可靠性,购买该房屋时,请谨慎核查。入学情况仅凭历史经验总结,在此不承诺升学事宜。请您在签订合同之前,切勿支付任何形式的费用,以免上当受骗。



