川大新南村 2室1厅 南
-
110万
总价
-
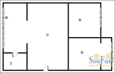
2室1厅
户型
-
59.97㎡
建筑面积
买房加房产交流群,省钱不踩雷
3000+人正在热聊
加入群聊
-
单价
18343元/平米
- 挂牌价格解析
-
楼层
中楼层/7层
- 咨询楼层
-
套内
暂无数据
- 咨询套内使用面积
-
楼型
板塔结合
-
朝向
南
-
装修
简装
-
供暖
暂无数据
-
年代
1993
-
发布
2024-08-19
-
地铁
距8号线川大望江校区站约669米
-
咨询总首付
首付约28.5万
首付税费及佣金情况 -
深度测评
小区川大新南村(武侯-川音)
-
更多
楼户比、楼层高度、交易历史、抵押信息
-
核验码
20241016468
周边配套
地址:一环路南一段24号
交通综合评分
查看全部7.0
“较好”
超过成都91.7%的小区
-
地铁公交
10.0
-
驾车出行
10.0
本月均价 18291元/m²
环比上月 下跌 2.72%
同比去年 下跌 17.14%
猜你喜欢
同小区其它房源
户型齐全,主打户型方正,明卫,明厨三居
川大新南村户型主要有54平-96平的户型方正,明卫,明厨的三居 、54平-63平的户型方正,明厨,明卫,客厅朝南,全明格局的二居 。
*获取完整户型报告,同时会有免费语音讲解服务
-
14335元/㎡
本月挂牌均价
-
0.47%
环比上月
买房加房产交流群,省钱不踩雷
3000+人正在热聊
加入群聊
免责声明:房源信息由网站用户提供,其真实性、合法性由信息提供者负责,最终以政府部门登记备案为准。本网站不声明或保证内容之正确性和可靠性,购买该房屋时,请谨慎核查。入学情况仅凭历史经验总结,在此不承诺升学事宜。请您在签订合同之前,切勿支付任何形式的费用,以免上当受骗。



