海伦印象 2室2厅 西南 西 西北
-
178万
总价
-
2室2厅
户型
-
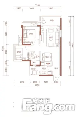
71.56㎡
建筑面积
买房加房产交流群,省钱不踩雷
3000+人正在热聊
加入群聊
-
单价
24875元/平米
- 挂牌价格解析
-
楼层
高楼层/40层
- 咨询楼层
-
套内
暂无数据
- 咨询套内使用面积
-
楼型
板塔结合
-
朝向
西南北
-
装修
精装
-
供暖
暂无数据
-
年代
2018
-
发布
2023-06-23
-
地铁
距5号线骑龙站约485米
-
咨询总首付
首付约43.6万
首付税费及佣金情况 -
深度测评
小区海伦印象(天府新区-华阳)
-
更多
楼户比、楼层高度、交易历史、抵押信息
-
核验码
20240513840
周边配套
地址:天府新区华府大道一段(机关三幼旁)
交通综合评分
查看全部6.1
“较好”
超过成都79.0%的小区
-
地铁公交
10.0
-
驾车出行
7.0
本月均价 19184元/m²
环比上月 下跌 0.63%
同比去年 下跌 5.05%
猜你喜欢
同小区其它房源
户型齐全,主打露台,南北通透,观景飘窗三居
海伦印象户型主要有89平-109平的露台,南北通透,观景飘窗的三居 、119平-256平的主卧带卫,主卧套间的四居 、71平-71平的户型方正,观景飘窗,双阳台的二居 。
*获取完整户型报告,同时会有免费语音讲解服务
-
11399元/㎡
本月挂牌均价
-
0.75%
环比上月
买房加房产交流群,省钱不踩雷
3000+人正在热聊
加入群聊
免责声明:房源信息由网站用户提供,其真实性、合法性由信息提供者负责,最终以政府部门登记备案为准。本网站不声明或保证内容之正确性和可靠性,购买该房屋时,请谨慎核查。入学情况仅凭历史经验总结,在此不承诺升学事宜。请您在签订合同之前,切勿支付任何形式的费用,以免上当受骗。



