绿地紫瑞里 4室2厅 西
-
335万
总价
-
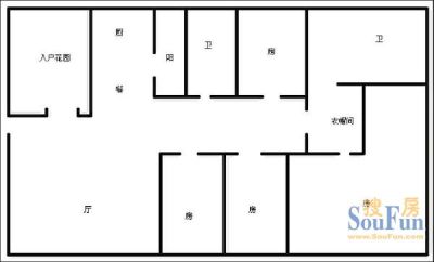
4室2厅
户型
-
163.32㎡
建筑面积
买房加房产交流群,省钱不踩雷
3000+人正在热聊
加入群聊
-
单价
20512元/平米
- 挂牌价格解析
-
楼层
中楼层/12层
- 咨询楼层
-
套内
135.2㎡
- 咨询套内使用面积
-
楼型
板楼
-
朝向
西
-
装修
简装
-
供暖
自供暖
-
年代
2005
-
发布
2024-01-09
-
地铁
距5号线神仙树站约589米
-
咨询总首付
首付约102.7万
首付税费及佣金情况 -
深度测评
小区维多利亚公寓(高新-神仙树)
-
更多
楼户比、楼层高度、交易历史、抵押信息
-
核验码
106117269631
周边配套
地址:紫瑞大道188号
交通综合评分
查看全部7.0
“较好”
超过成都25.5%的小区
-
地铁公交
10.0
-
驾车出行
10.0
本月均价 19472元/m²
环比上月 下跌 1.28%
同比去年 下跌 3.03%
猜你喜欢
同小区其它房源
户型齐全,主打户型方正,明卫,明厨三居
维多利亚公寓户型主要有120平-146平的户型方正,明卫,明厨的三居 、85平-94平的户型方正,明厨,明卫,客厅朝南,主卧朝南的二居 、55平-67平的户型方正,明卫,客厅朝南,主卧朝南的一居 。
*获取完整户型报告,同时会有免费语音讲解服务
-
15193元/㎡
本月挂牌均价
-
0.05%
环比上月
买房加房产交流群,省钱不踩雷
3000+人正在热聊
加入群聊
免责声明:房源信息由网站用户提供,其真实性、合法性由信息提供者负责,最终以政府部门登记备案为准。本网站不声明或保证内容之正确性和可靠性,购买该房屋时,请谨慎核查。入学情况仅凭历史经验总结,在此不承诺升学事宜。请您在签订合同之前,切勿支付任何形式的费用,以免上当受骗。



