新出!上叠别墅已改造,实得400平,百平大平台,电梯入户
-
710万
总价
-
4室3厅2卫
户型
-
156.6㎡
建筑面积
买房加房产交流群,省钱不踩雷
3000+人正在热聊
-
单价
45338元/平米
- 挂牌价格解析
-
楼层
中层/5层
- 咨询楼层
-
套内
133.11㎡
- 咨询套内使用面积
-
楼型
砖楼
-
朝向
南北
-
装修
毛坯
-
年代
2017
-
发布
2024-11-29
-
地铁
暂无数据
-
咨询总首付
首付约207万
首付税费及佣金情况 -
深度测评
小区建发翡翠鹭洲(高新-大源)
-
更多
楼户比、楼层高度、交易历史、抵押信息
-
核验详情
核验码20240908503
房源描述(1)
-
核心卖点问经纪人
1:买2层2层,实得400平方米。 2:面积156平,得房率很高,利用面积到位,空间感宽阔。 3:布局采光不挡,小区中心位置,楼间距大,视野无遮挡。 4:装修清水房,可以根据自己的情况,装修的漂亮、 5:此房教科院附属、
-
业主心态问经纪人
业主资金周转,诚意出售,本人一直在维护,方便看房,价到业主签约
-
小区配套问经纪人
小区物业管理严格,进小区大门和单元门均需要刷卡入户。舒适,人车分流。
-
服务介绍问经纪人
专注:大源板块【辰邦地产 孙大平】二手房 大平层 洋房别墅 商铺写字楼等 专注城南:感恩.真诚.用心.专业.如果你对此房满意,可以随时电话了解。 欢迎点击本人店铺,更多房源,诚信做事。
-
税费分析房贷计算
产权干净,税费清晰,欢迎来电咨询该房屋详情,静候您的来电!
-
户型解读问经纪人
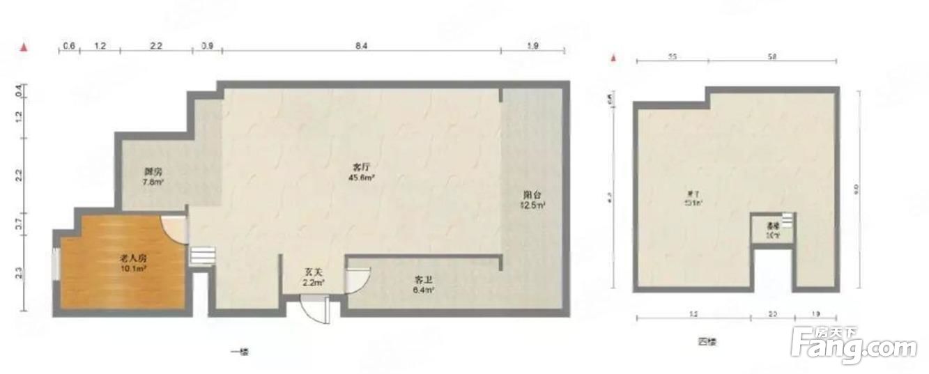
房屋户型方正,景观布局合理,设计实用,空间舒适,格局优越,采光通风良好
周边配套
交通综合评分
查看全部超过成都69.0%的小区
-
地铁公交
9.0
-
驾车出行
10.0
本月均价 30606元/m²
环比上月 下跌 0.51%
同比去年 下跌 6.31%
猜你喜欢
同小区其它房源
户型齐全,主打户型方正,明厨,明卫三居
建发翡翠鹭洲户型主要有78平-92平的户型方正,明厨,明卫的三居 、98平-148平的主卧带卫,户型方正,全明格局,干湿分离的四居 、68平-69平的客厅朝南的二居 。
*获取完整户型报告,同时会有免费语音讲解服务
-
29399元/㎡
本月挂牌均价
-
0.39%
环比上月
买房加房产交流群,省钱不踩雷
3000+人正在热聊
- 免费咨询
- 专业服务
- 区域解读
- 户型分析


