399买入千亩公园游艇别墅
-
400万
总价
-
4室2厅4卫
户型
-
246㎡
建筑面积
买房加房产交流群,省钱不踩雷
3000+人正在热聊
-
单价
16260元/平米
- 挂牌价格解析
-
楼层
顶层/6层
- 咨询楼层
-
套内
暂无数据
- 咨询套内使用面积
-
楼型
板楼
-
朝向
南北
-
装修
简装修
-
年代
2021
-
发布
2024-11-22
-
地铁
暂无数据
-
咨询总首付
首付约120.1万
首付税费及佣金情况 -
深度测评
小区黄龙溪谷(双流-双流城区)
-
更多
楼户比、楼层高度、交易历史、抵押信息
房源描述(1)
-
核心卖点问经纪人
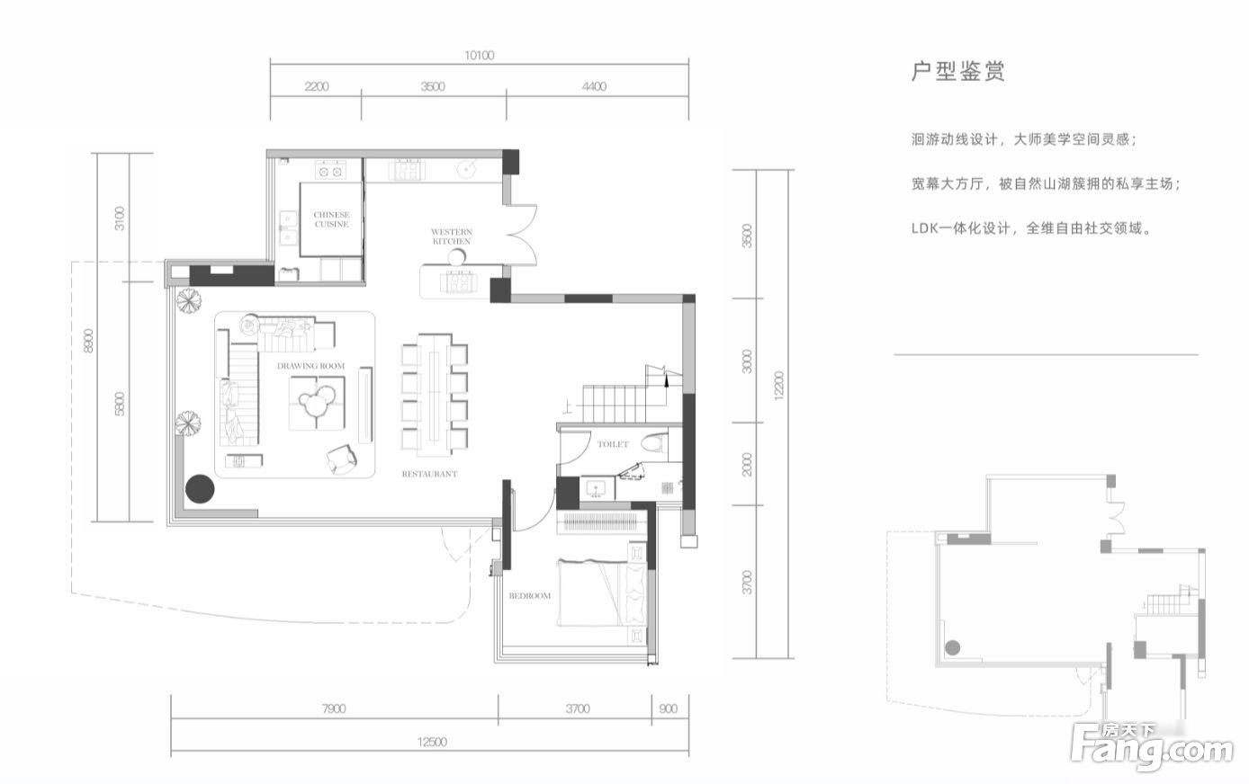
项目位于天府新区、黄龙溪古镇旁,是早期在黄龙溪板块开发的项目之一,携手知名建筑、景观、生态治理团队,打造中国西南生态大盘典范。 提及成都的未来一定在国际城南,而提及城南几块为少数人精心准备的土地,本项目则在此名单之列,它独具创意地完美融合自然与生活,演绎着何为成都高端墅居,刷新着对置业的想象。 价值点: 三面湖山景观环绕:坡地高处俯瞰视野 浅丘坡地地势,平原上非常少有,建筑层层退台,楼层退台,拥有绝佳山湖景观视野 低容低密:232亩容积率1.17(市场同类举例:2.0容积率且高低配、楼间距近没有景观,私密性差)限墅令下别墅感的低密度墅区! 外立面:选用比普通材质贵3-4倍的GRC木纹铝板干挂石材系统玻璃门窗配合简洁明快色彩野奢气息自然的松弛感,市场少有高端质感! 三条景观峡谷:引入溪谷湖山景色,更多自然感受 酒店式入户大堂:超具仪式感归家动线,双首层入户大堂,五星级物业服务,市面! 首推产品,平墅、三叠拼、二叠拼 产品亮点: 1、270度景观面 2、叠拼使用面积430-870平 3、近370平首层空间 4、面宽12米,巨幕LDK 5、超40平双主卧套房
-
业主心态问经纪人
开发商大降价出售
-
小区配套问经纪人
位置:小区地理位置佳,绿化率高,居民素质高 配套:有健身器材,小型篮球场,可供小区居民使用 车位:停车位充足,建有地上停车场和地下车库 保安:小区内24保安巡逻
-
服务介绍问经纪人
本人从事房地产多年,公司有大量好房源,欢迎进入我的店铺查看,欢迎随时电话咨询,相信我的专业,为您置业安家保驾护航。
周边配套
交通综合评分
查看全部超过成都71.4%的小区
-
地铁公交
5.0
本月均价 19852元/m²
环比上月 下跌 2.67%
同比去年 下跌 17.32%
猜你喜欢
同小区其它房源
户型齐全,主打南北通透,客厅朝南,卧室朝南三居
黄龙溪谷户型主要有108平-144平的南北通透,客厅朝南,卧室朝南的三居 、145平-277平的南北通透,客厅朝南,卧室朝南的四居 、206平-206平的南北通透,全明格局,户型方正,客厅朝南,卧室朝南,带露台的五居 。
*获取完整户型报告,同时会有免费语音讲解服务
-
9804元/㎡
本月挂牌均价
-
0.55%
环比上月
买房加房产交流群,省钱不踩雷
3000+人正在热聊
- 免费咨询
- 专业服务
- 区域解读
- 户型分析

