急售急售 7米层高搭双层 送40万和7万全新家具 7+35
-
375万
总价
-
精装修
装修
-
500㎡
建筑面积
买房加房产交流群,省钱不踩雷
3000+人正在热聊
-
楼层
高层/21层
-
单价
7500元/平米
-
楼盘名称
新世纪环球中心
-
区域
高新
-
物业费
19元/平米·月
-
类型
纯写字楼
-
等级
甲级
-
挂牌时间
2024-10-08
房源描述(1)
-
核心卖点问经纪人
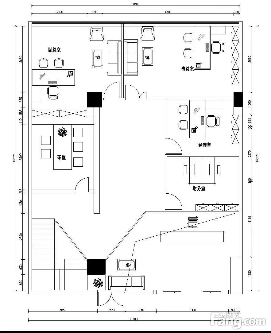
百城找房小徐-诚挚为您服务! 因为专注-所以专业因为用心-所以放心 ,真实图片,只为让您0距离了解房源! 【房源信息】 1,楼 盘:新世纪环球中心 2,房源描述: A卖点:环球中心,天府大道,锦城广场地铁出口,业主闲置资产出售 业主诚心出售 亏本甩卖 7米层髙可搭双层 急售急售 7米层高搭双层 送40万和7万全新家具 7+35 各付各税 产权干净 B权属:产权在手,随时可以交易 C价值:物业特殊,! 3,交通位置:楼盘位于高新区天府大道南段1700号、地铁一号线锦城广场地铁站写字楼负一楼,公交118、115、26、84、 102 、545 、501 、504 、 815 【更多房源】 1、面积从53到5000平米,位置和价格任您选,环球中心租赁客户,服务不打折! 2、公司专业代理南门、写字楼、、除了二手买卖,都不收中介费,免费带看,洽谈,客户0额外费用,真正做到客户是上帝! 我是百城找房的徐朝栋,24开机服务热线:
-
服务介绍问经纪人
本人郑重声明:绝不收取租赁客户半分居间费!本人所发布的房源面积、图片、价格等全部是真实信息,请放心浏览、咨询,欢迎实地看房!
-
周边配套问经纪人
:中和、美视国际、部、住宅:中海R26;城南1号、南苑小区、南城都汇、时代晶科名苑酒店:皇冠假日酒店、洲际酒店、费尔蒙酒店餐饮:俏江南、港莉茶餐厅、蜀缘快乐餐厅、尊尚牛排、土碗香、乐天美食街商场:欧尚、宜居、迪卡侬、伊藤、深圳茂业百货、美美力诚旗舰店、奥斯莱特购物中心、中航时尚购物中心,银泰城购物中心(银行:中国银行、工商银行、光大银行、中信银行、兴业银行、农业银行、建设银行、进出口银行医院:成都市人民医院、华
-
交通出行问经纪人
新世纪环球中心具有国内中心城市少有的无障碍城市交通快速体系:城市主干道——天府大道纵贯其中;地铁1号线专设站口;红星路南延线、绕城高速、新元华路等快速通道分别连通市区路网。城市公交骨干线定点保障、4条高铁环绕。离新的火车南站仅3公里,轨道交通与路面交通便捷换乘。的城市交通体系为项目的发展提供了时空保障。
周边配套
交通综合评分
查看全部超过成都71.9%的小区
-
地铁公交
10.0
-
驾车出行
10.0
猜你喜欢
同小区其它写字楼
- 免费咨询
- 专业服务
- 区域解读
- 户型分析

