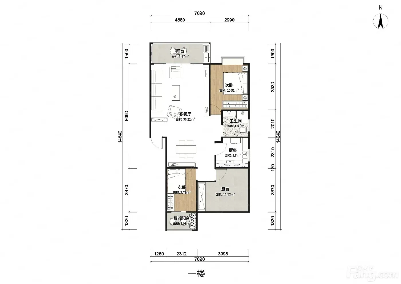
青白江 映泉美居 2室2厅带一个露台和一个跃层屋顶花园
-
48万元
总价
-
2室1厅1卫
户型
-
95.94㎡
建筑面积
买房加房产交流群,省钱不踩雷
3000+人正在热聊
加入群聊
-
单价
5003元/平米
- 挂牌价格解析
-
楼层
顶层/6层
- 咨询楼层
-
套内
暂无数据
- 咨询套内使用面积
-
朝向
南北
-
年代
2010
-
发布
2024-11-29
-
咨询总首付
首付约14.9万
首付税费及佣金情况 -
深度测评
小区映泉美居(青白江-青白江)
-
更多
楼户比、楼层高度、交易历史、抵押信息
业主自评
-
悦诗风吟
加入房天下2784天
接电时间:09:00-22:00
清水房,坐南朝北,大客厅,采光好,带一露台可做花园可做书房,送一96平方跃层屋顶花园,位于青白江城市核心区,周边生活便利,小区环境好
清水房,坐南朝北,大客厅,采光好,带一露台可做花园可做书房,送一96平方跃层屋顶花园,位于青白江城市核心区,周边生活便利,小区环境好
周边配套
地址:华逸路49号
交通综合评分
查看全部6.2
“较好”
超过成都10.2%的小区
-
地铁公交
5.0
-
驾车出行
10.0
-
城际交通
4.0
本月均价 4493元/m²
环比上月 上涨 11.17%
同比去年 上涨 20.72%
猜你喜欢
同小区其它房源
户型齐全,主打户型方正,客厅朝南三居
映泉美居户型主要有92平-139平的户型方正,客厅朝南的三居 、87平-87平的户型方正,明卫,双卧朝南,主卧朝南的二居 。
*获取完整户型报告,同时会有免费语音讲解服务
买房加房产交流群,省钱不踩雷
3000+人正在热聊
加入群聊
联系业主
免责声明:房源信息由网站用户提供,其真实性、合法性由信息提供者负责,最终以政府部门登记备案为准。本网站不声明或保证内容之正确性和可靠性,购买该房屋时,请谨慎核查。入学情况仅凭历史经验总结,在此不承诺升学事宜。请您在签订合同之前,切勿支付任何形式的费用,以免上当受骗。

