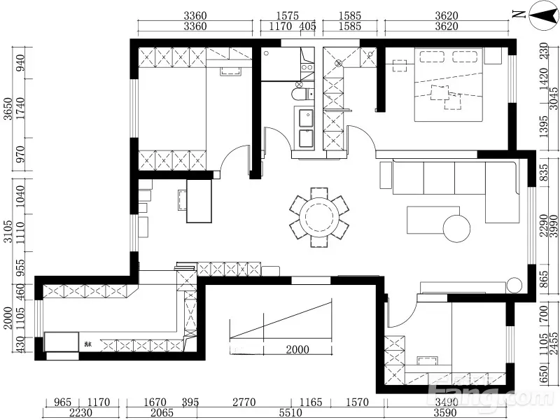
明华学府 3室2厅 诚信出售
-
92万元
总价
-
133.97㎡
建筑面积
-
单价
6867元/平米
- 挂牌价格解析
-
套内
暂无数据
- 咨询套内使用面积
-
朝向
南北
-
发布
2024-11-30
-
地铁
暂无数据
-
深度测评
小区明华学府
-
更多
楼户比、楼层高度、交易历史、抵押信息
业主自评
-
那年夏天的歌130
加入房天下447天
接电时间:09:00-22:00
联系业主
免责声明:房源信息由网站用户提供,其真实性、合法性由信息提供者负责,最终以政府部门登记备案为准。本网站不声明或保证内容之正确性和可靠性,购买该房屋时,请谨慎核查。入学情况仅凭历史经验总结,在此不承诺升学事宜。请您在签订合同之前,切勿支付任何形式的费用,以免上当受骗。

