中加福园,小户型,精装修,拎包住,诚意出售
-
89万
总价
-
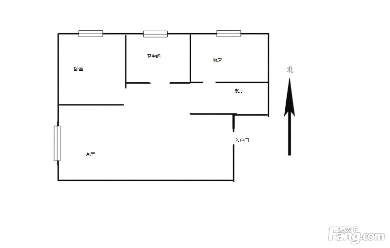
1室1厅
户型
-
57.01㎡
建筑面积
买房加房产交流群,省钱不踩雷
3000+人正在热聊
-
单价
15612元/平米
- 挂牌价格解析
-
楼层
高楼层/6层
- 咨询楼层
-
套内
50.35㎡
- 咨询套内使用面积
-
楼型
板楼
-
朝向
西
-
装修
其他
-
供暖
集中供暖
-
年代
2011
-
发布
2025-11-01
-
地铁
暂无数据
-
咨询总首付
首付约25.8万
首付税费及佣金情况 -
深度测评
小区中加福园(密云-密云果园)
-
更多
楼户比、楼层高度、交易历史、抵押信息
房源描述(1)
-
核心卖点问经纪人
相信为您推荐的这套房子您一定会满意,赶快行动吧,先到先得! 房屋年代∶2011,面积∶57.01平方米,朝向∶西北 1. 小区配备高端物业管理,让你享受宾至如归的服务; 2. 小区人文素质高,是您的居家的绝佳选择; 3. 小区居住安静舒适,让您拥有高品质的生活环境; 4. 小区绿化率高,绿树成荫鸟语花香让您随时呼吸到新鲜空气。
周边配套
交通综合评分
查看全部超过北京3.6%的小区
-
地铁公交
5.0
-
驾车出行
9.0
本月均价 17328元/m²
环比上月 下跌 1.12%
同比去年 下跌 12.24%
猜你喜欢
同小区其它房源
户型齐全,主打明厨,主卧朝南二居
中加福园户型主要有74平-98平的明厨,主卧朝南的二居 、97平-113平的户型方正,明厨,明卫,客厅朝南,全明格局,主卧朝南的三居 、57平-57平的明厨,明卫,客厅朝南的一居 。
*获取完整户型报告,同时会有免费语音讲解服务
-
19949元/㎡
本月挂牌均价
-
0.92%
环比上月
买房加房产交流群,省钱不踩雷
3000+人正在热聊
- 免费咨询
- 专业服务
- 区域解读
- 户型分析


