东花市·富贵园四区·1室·1厅
-
510万
总价
-
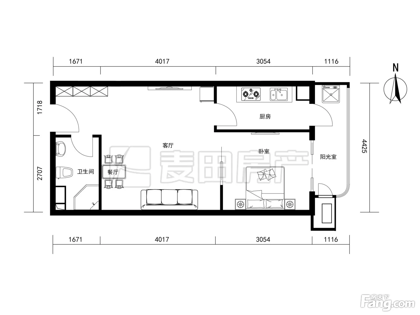
1室1厅1卫
户型
-
55.35㎡
建筑面积
买房加房产交流群,省钱不踩雷
3000+人正在热聊
加入群聊
-
单价
92141元/平米
- 挂牌价格解析
-
楼层
低楼层/10层
- 咨询楼层
-
套内
暂无数据
- 咨询套内使用面积
-
楼型
塔楼
-
朝向
东
-
装修
精装
-
供暖
集中供暖
-
年代
2007
-
发布
2025-09-18
-
地铁
距7号线广渠门内站约141米
-
咨询总首付
首付约146.3万
首付税费及佣金情况 -
深度测评
小区富贵园四区(东城-广渠门内)
-
更多
楼户比、楼层高度、交易历史、抵押信息
周边配套
地址:广渠门内大街与东花市东街交汇处北行100米路西
交通综合评分
查看全部7.1
“较好”
超过北京77.8%的小区
-
地铁公交
10.0
-
驾车出行
6.0
-
城际交通
4.5
本月均价 101937元/m²
环比上月 下跌 2.29%
同比去年 下跌 13.94%
猜你喜欢
同小区其它房源
户型齐全,主打一居
富贵园四区户型主要有38平-70平的的一居 、90平-120平的户型方正的二居 、89平-161平的户型方正,独立衣帽间,主卧朝南的三居 。
*获取完整户型报告,同时会有免费语音讲解服务
-
79328元/㎡
本月挂牌均价
-
1.37%
环比上月
买房加房产交流群,省钱不踩雷
3000+人正在热聊
加入群聊
免责声明:房源信息由网站用户提供,其真实性、合法性由信息提供者负责,最终以政府部门登记备案为准。本网站不声明或保证内容之正确性和可靠性,购买该房屋时,请谨慎核查。入学情况仅凭历史经验总结,在此不承诺升学事宜。请您在签订合同之前,切勿支付任何形式的费用,以免上当受骗。



