海怡庄园东区 电梯楼 高楼层 视野好
-
170万
总价
-
2室1厅
户型
-
102.56㎡
建筑面积
买房加房产交流群,省钱不踩雷
3000+人正在热聊
-
单价
16576元/平米
- 挂牌价格解析
-
楼层
高楼层/18层
- 咨询楼层
-
套内
暂无数据
- 咨询套内使用面积
-
楼型
板楼
-
朝向
南北
-
装修
其他
-
供暖
集中供暖
-
发布
2024-07-10
-
地铁
暂无数据
-
咨询总首付
首付约49.4万
首付税费及佣金情况 -
深度测评
小区海怡庄园(密云-密云果园)
-
更多
楼户比、楼层高度、交易历史、抵押信息
房源描述(1)
-
核心卖点问经纪人
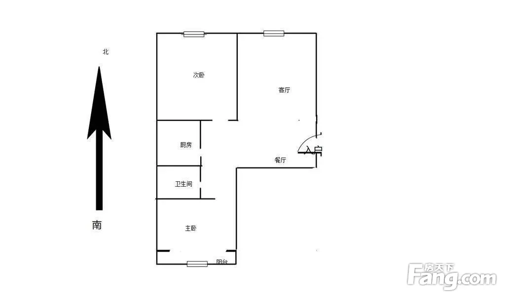
两居户型: 1 大两居 舒适宜居 格局方正 采光 货真价实的无浪费空间 2 该房所在楼栋有电梯 小孩 老人均适合居住 不用爬楼 3南北通透 动静分区 超高的使用率,让您感受不一样的使用空间 4 性能价格比让您满意 包您买的放心 您即刻出手 也永不后悔
-
业主心态问经纪人
1 业主诚心换房出售 房源真实有效 看房后有较大议价空间 2业主很随和,好沟通,家里意见统一,是非常靠谱的房源 3 业主诚心换房出售 房源真实有效 看房后有较大议价空间
-
小区配套问经纪人
5高端商业:万象汇、西单商场、国泰百货、奥特莱斯、物美超市、密云商场等。 6医疗配套:密云县医院(三甲级医院)、密云中医院、密云心脑血管病医院等。
-
服务介绍问经纪人
本人从业十余年 聚焦多个密云高端项目,房源多多,给您贴心、周到的服务!为您 耐心为您介绍每套房屋的优缺点,根据您的需求,为您匹配适合的房源信息
-
税费分析房贷计算
税费 1 按照国家规定缴纳相关税费,购买该房屋仅产生契税、 2根据您的个人购房情况给您设计合理既有方案 可以随时电话咨询我
-
户型解读问经纪人
两居户型: 2 大两居 舒适宜居 格局方正 采光 货真价实的无浪费空间 3 南北通透,户型方正的标准大两居,宽敞明亮,采光好,让您住的满意。 4大客厅 大阳台的设计让居住者充分享受阳光的惬意,南北各一个卧室的设计让通风效果达到最优
周边配套
交通综合评分
查看全部超过北京72.0%的小区
-
地铁公交
5.0
-
驾车出行
9.0
本月均价 16553元/m²
环比上月 下跌 1.29%
同比去年 下跌 4.88%
猜你喜欢
同小区其它房源
户型齐全,主打明厨,客厅朝南,主卧朝南二居
海怡庄园户型主要有85平-106平的明厨,客厅朝南,主卧朝南的二居 、122平-142平的户型方正,明厨,客厅朝南,双卧朝南的三居 、42平-43平的明厨,客厅朝南的一居 。
*获取完整户型报告,同时会有免费语音讲解服务
-
20134元/㎡
本月挂牌均价
-
0.49%
环比上月
买房加房产交流群,省钱不踩雷
3000+人正在热聊
- 免费咨询
- 专业服务
- 区域解读
- 户型分析


