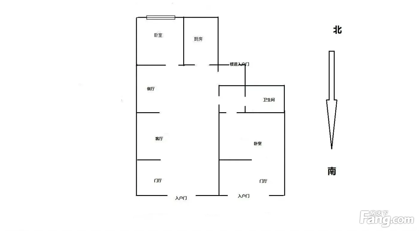
檀城西区 3室2厅 南 北
-
228万
总价
-
3室2厅1卫
户型
-
114.73㎡
建筑面积
买房加房产交流群,省钱不踩雷
3000+人正在热聊
加入群聊
-
单价
19873元/平米
- 挂牌价格解析
-
楼层
底层/6层
- 咨询楼层
-
套内
暂无数据
- 咨询套内使用面积
-
楼型
板楼
-
朝向
南北
-
装修
其他
-
供暖
集中供暖
-
年代
2006
-
发布
2024-01-09
-
地铁
暂无数据
-
咨询总首付
首付约66.9万
首付税费及佣金情况 -
深度测评
小区檀城西区(密云-少年宫)
-
更多
楼户比、楼层高度、交易历史、抵押信息
周边配套
地址:北京市密云县新中街177号
交通综合评分
查看全部5.0
“一般”
超过北京31.7%的小区
-
地铁公交
5.0
-
驾车出行
10.0
本月均价 18216元/m²
环比上月 上涨 0.44%
同比去年 下跌 14.11%
猜你喜欢
同小区其它房源
户型齐全,主打明卫,明厨,客厅朝南,全明格局,双卧朝南三居
檀城西区户型主要有124平-138平的明卫,明厨,客厅朝南,全明格局,双卧朝南的三居 、103平-106平的户型方正,明厨,客厅朝南,主卧朝南的二居 、171平-198平的户型方正,明厨,主卧朝南的四居 。
*获取完整户型报告,同时会有免费语音讲解服务
-
21114元/㎡
本月挂牌均价
-
1.41%
环比上月
买房加房产交流群,省钱不踩雷
3000+人正在热聊
加入群聊
免责声明:房源信息由网站用户提供,其真实性、合法性由信息提供者负责,最终以政府部门登记备案为准。本网站不声明或保证内容之正确性和可靠性,购买该房屋时,请谨慎核查。入学情况仅凭历史经验总结,在此不承诺升学事宜。请您在签订合同之前,切勿支付任何形式的费用,以免上当受骗。



