落地窗视野开阔,东南向,视野采光好,09年商品楼
-
899万
总价
-
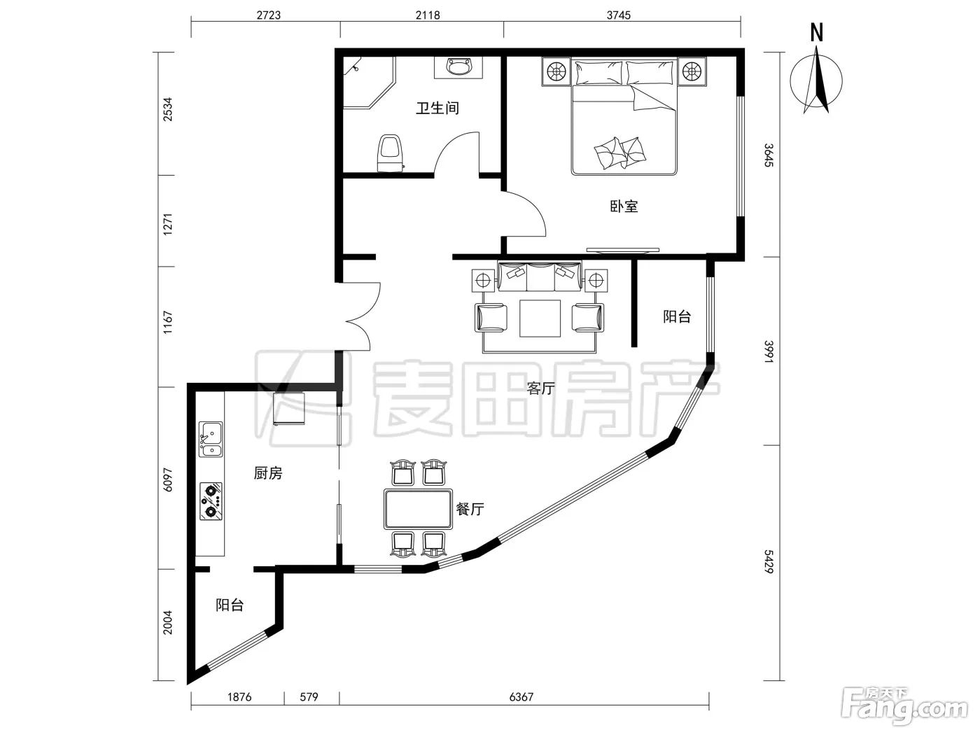
2室1厅1卫
户型
-
94.88㎡
建筑面积
买房加房产交流群,省钱不踩雷
3000+人正在热聊
-
单价
94752元/平米
- 挂牌价格解析
-
楼层
中楼层/15层
- 咨询楼层
-
套内
暂无数据
- 咨询套内使用面积
-
楼型
板塔结合
-
朝向
东南
-
装修
精装
-
供暖
集中供暖
-
年代
2008
-
发布
2024-07-27
-
地铁
距5号线磁器口站约637米
-
咨询总首付
首付约509万
首付税费及佣金情况 -
深度测评
小区新景家园(东城-崇文门)
-
更多
楼户比、楼层高度、交易历史、抵押信息
房源描述(1)
-
核心卖点问经纪人
相信为您推荐的这套房子您一定会满意,赶快行动吧,先到先得! 房屋年代∶2008,面积∶94.88平方米,朝向∶东南 1. 小区配备高端物业管理,让你享受宾至如归的服务; 2. 小区人文素质高,是您的居家的绝佳选择; 3. 小区居住安静舒适,让您拥有高品质的生活环境; 4. 小区绿化率高,绿树成荫鸟语花香让您随时呼吸到新鲜空气。
-
小区配套问经纪人
新景家园秉承新世界的一贯风范,对各项生活能源将保证供应,现代通讯、信息系统断口连接入户、室内双回路供电、每户冷热水表、消防保安配置完全妥帖,并有充足的地下停车场,共享北京新世界中心、北京新世界太华公寓的现代商业及会所,新景家园将使入住这一京城内超大社区的业主们感到方便、体会舒适、全无后顾之忧。
周边配套
交通综合评分
查看全部超过北京19.7%的小区
-
地铁公交
10.0
-
城际交通
4.0
本月均价 99018元/m²
环比上月 下跌 0.3%
同比去年 下跌 8.71%
猜你喜欢
同小区其它房源
户型齐全,主打户型方正,明厨,客厅朝南,主卧朝南二居
新景家园户型主要有56平-137平的户型方正,明厨,客厅朝南,主卧朝南的二居 、22平-89平的户型方正,明厨,客厅朝南的一居 、72平-144平的明厨,客厅朝南的三居 。
*获取完整户型报告,同时会有免费语音讲解服务
-
96691元/㎡
本月挂牌均价
-
0.59%
环比上月
买房加房产交流群,省钱不踩雷
3000+人正在热聊
- 免费咨询
- 专业服务
- 区域解读
- 户型分析


