白河涧翠竹园4居室户型房正采光好不临街新上房源!
-
610万
总价
-
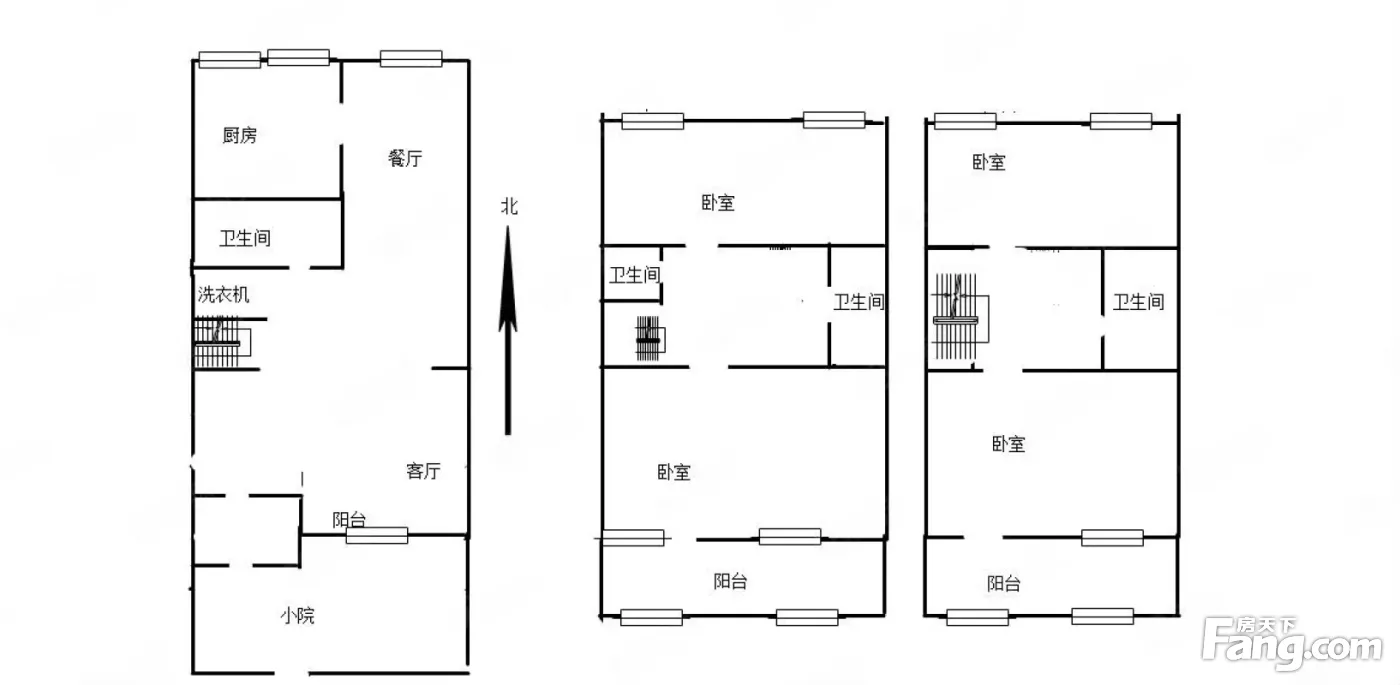
4室2厅3卫
户型
-
179.54㎡
建筑面积
买房加房产交流群,省钱不踩雷
3000+人正在热聊
-
单价
33976元/平米
- 挂牌价格解析
-
楼层
3层
- 咨询楼层
-
套内
178.54㎡
- 咨询套内使用面积
-
楼型
独栋
-
朝向
南
-
装修
精装修
-
年代
2006
-
发布
2026-02-08
-
咨询总首付
首付约202.5万
首付税费及佣金情况 -
深度测评
小区白河涧别墅(密云-密云其它)
-
更多
楼户比、楼层高度、交易历史、抵押信息
房源描述(1)
-
核心卖点问经纪人
房子优势 1、格局方正。大厅主卧朝朝南!朝向:朝南 2.绿化率0.63,多种绿色植被,的氧吧,让您的生活更加健康! 3、采光,全天8采光,每天都能沐浴着阳光 4、精装修 5、清晰 6、业主非常配合,随时联系开门看房,随时签约 小区优势: 1、本小区物业连续N次被评为“物业” 2、小区实行人车分流,无需担心老人小孩在小区内安全 3、出门步行10到超市;车站;出行方便。 区位优势: 1、附近地铁:暂无资料,京密引水渠 2.交通方便 3.地段好,空间巨大 作为一线房产人员,从业多年,贴合实际专业为您解读当下市场,解读当下新政,帮你计算税费,合理,圆您家的梦! 的我向您承诺:房源有效,一对一电话沟通!
-
业主心态问经纪人
房东置换,诚心出售,价格可以再谈,欢迎看房,随时恭候。
-
小区配套问经纪人
小区地理位置佳,绿化环境优越整洁,居民素质高,物业管理完善,适宜居住
-
服务介绍问经纪人
本人做房产多年,一直本着专业的房产知识,为您服务,我会在短的时间内帮您买好满意的房子,不让您错失任何好房子,更不让您每天为买房的事烦心,欢迎随时拨打我电话。
-
税费分析房贷计算
关于本房的税费信息情况,请电话联系我,我将详细的为您讲解!
周边配套
交通综合评分
查看全部超过北京96.9%的小区
-
地铁公交
5.0
户型齐全,主打户型方正,明厨,明卫,客厅朝南二居
白河涧别墅户型主要有70平-93平的户型方正,明厨,明卫,客厅朝南的二居 、122平-256平的户型方正,明厨,主卧朝南的四居 。
*获取完整户型报告,同时会有免费语音讲解服务
-
19100元/㎡
本月挂牌均价
-
1.09%
环比上月
买房加房产交流群,省钱不踩雷
3000+人正在热聊
- 免费咨询
- 专业服务
- 区域解读
- 户型分析

