南北通透密云世纪家园3室2厅精装修
-
288万
总价
-
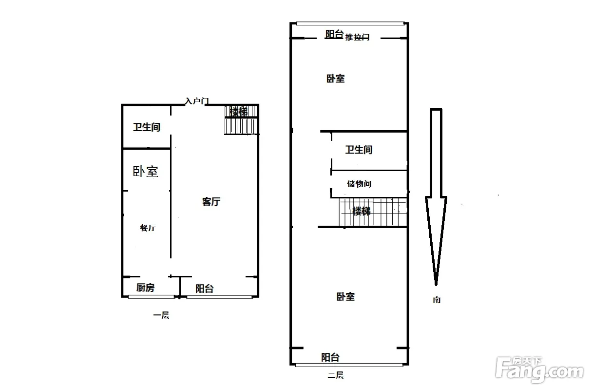
3室2厅2卫
户型
-
150.98㎡
建筑面积
买房加房产交流群,省钱不踩雷
3000+人正在热聊
-
单价
19075元/平米
- 挂牌价格解析
-
楼层
低层/10层
- 咨询楼层
-
套内
130.25㎡
- 咨询套内使用面积
-
楼型
塔楼
-
朝向
南北
-
装修
精装修
-
年代
2005
-
发布
2026-01-12
-
咨询总首付
首付约95.3万
首付税费及佣金情况 -
深度测评
小区密云世纪家园(密云-宾阳)
-
更多
楼户比、楼层高度、交易历史、抵押信息
房源描述(1)
-
核心卖点问经纪人
相信为您推荐的这套房子您一定会满意,赶快行动吧,先到先得! 房屋年代∶2005,面积∶150.98平方米,朝向∶南北 1. 小区配备高端物业管理,让你享受宾至如归的服务; 2. 小区人文素质高,是您的居家的绝佳选择; 3. 小区居住安静舒适,让您拥有高品质的生活环境; 4. 小区绿化率高,绿树成荫鸟语花香让您随时呼吸到新鲜空气。
周边配套
交通综合评分
查看全部超过北京47.5%的小区
-
地铁公交
5.0
-
驾车出行
10.0
-
城际交通
5.0
本月均价 21366元/m²
环比上月 下跌 0.67%
同比去年 下跌 9.84%
猜你喜欢
同小区其它房源
户型齐全,主打明卫,明厨,客厅朝南,全明格局,主卧朝南三居
密云世纪家园户型主要有95平-223平的明卫,明厨,客厅朝南,全明格局,主卧朝南的三居 、78平-148平的明厨,客厅朝南,主卧朝南的二居 。
*获取完整户型报告,同时会有免费语音讲解服务
-
19431元/㎡
本月挂牌均价
-
0.45%
环比上月
买房加房产交流群,省钱不踩雷
3000+人正在热聊
- 免费咨询
- 专业服务
- 区域解读
- 户型分析

